**Standout Features:**
- **Cul-de-sac Location**: Quiet and family-friendly neighborhood.
- **New Roof (2024)**: Recent roof installation adds peace of mind.
- **Generous Plot Size**: Larger than average, offering ample outdoor space.
- **No Onward Chain**: Quick and hassle-free purchasing process.
- **Three Bedrooms**: Comfortable living space ideal for families.
- **Single Garage and Driveway**: Additional parking convenience.
**Summary:**
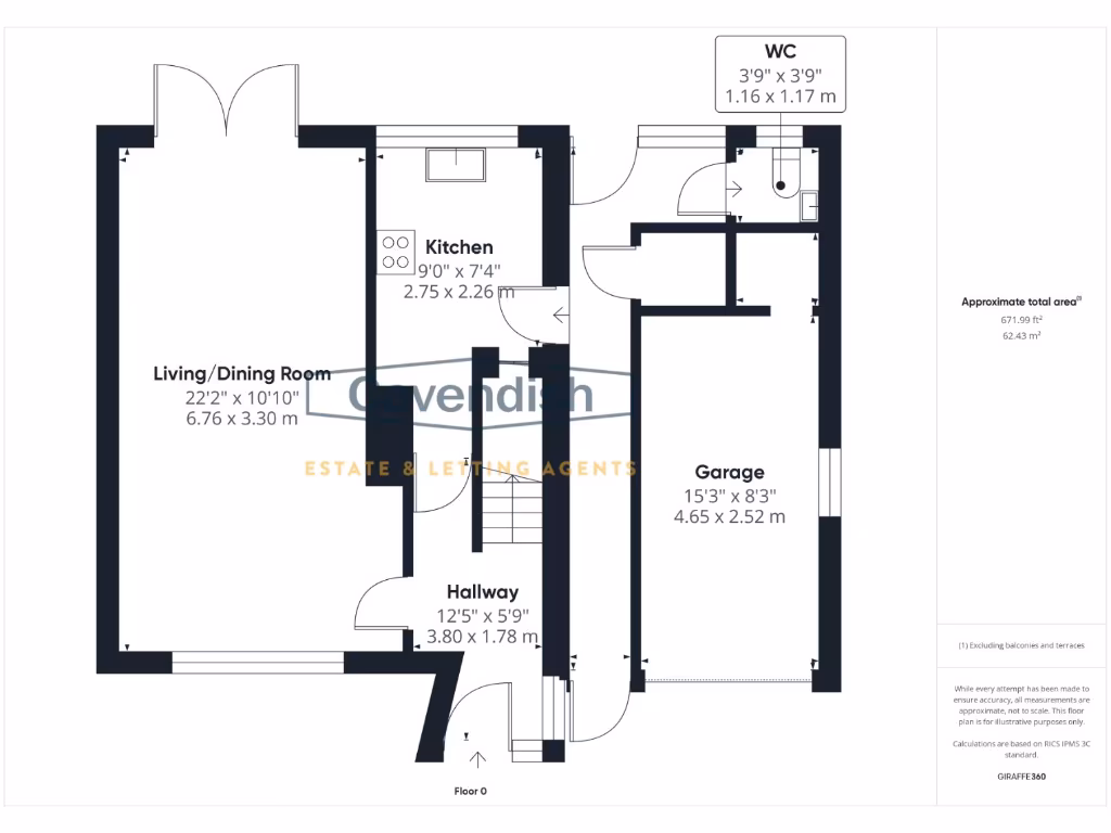
Discover comfort and convenience in this charming three-bedroom semi-detached house situated in the peaceful cul-de-sac of Ashfield Crescent, Blacon. The property enjoys a larger-than-average plot, featuring an established garden that's perfect for family gatherings or quiet evenings outdoors. Inside, the living/dining area is well-lit with French doors that seamlessly connect to the garden, while the fitted kitchen provides practical storage options with a built-in pantry.
Each bedroom is generously sized, ideal for family living, alongside a modern bathroom equipped with a separate shower, renovated in 2024. With the property being chain-free, you can move in without delay and begin creating lifelong memories in this welcoming space. This property not only meets immediate family needs but also offers renovation potential to tailor it further to your desires. Its prime location ensures easy access to local amenities, schools, and transport links, making it a perfect choice for families or first-time buyers looking for a comfortable, thriving community. Don’t miss the opportunity to make this delightful house your home!
3 bedroom semi-detached house for sale in Exeter Place, Blacon, Chester, CH1 — £200,000 • 3 bed • 1 bath • 874 ft²
3 bedroom semi-detached house for sale in Chiltern Close, Westminster Park, Chester, CH4 — £325,000 • 3 bed • 1 bath • 1092 ft²
3 bedroom semi-detached house for sale in Embassy Close, Blacon, Chester, CH1 — £190,000 • 3 bed • 1 bath • 860 ft²
3 bedroom semi-detached house for sale in Blacon Point Road, Chester, CH1 — £230,000 • 3 bed • 2 bath • 1168 ft²
3 bedroom semi-detached house for sale in Cairns Crescent, Blacon, Chester, CH1 — £170,000 • 3 bed • 1 bath • 894 ft²
2 bedroom semi-detached house for sale in Saughall Road, Blacon, Chester, CH1 — £225,000 • 2 bed • 1 bath • 1003 ft²






















































































