**Standout Features:**
- Newly renovated two-bedroom mid-terrace home
- Spacious, mature level gardens ideal for families and outdoor enjoyment
- Two reception rooms with modern fixtures and fittings
- Convenient location near high-achieving schools and local amenities
- Attic space available for additional storage or potential development
**Potential Downsides:**
- Nova area classification may suggest lower overall property values
- Some modernization required in certain areas, such as potential updates to the outdoor space
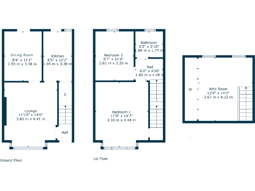
Discover this charming two-bedroom mid-terrace home, offering ideal conditions for families and first-time buyers alike. Recently renovated, the property boasts modern fixtures throughout and features two generous reception rooms that flow effortlessly into a stylish kitchen, perfect for entertaining. Step out into the expansive, well-enclosed gardens that promise endless opportunities for outdoor enjoyment—ideal for children or summer gatherings.
Located in the sought-after neighborhood of Clarkston, you will benefit from exceptional local amenities, including retail outlets and eateries, alongside access to some of the best schooling in West Scotland. Furthermore, the convenient transport links ensure effortless commutes to the city center.
This home is truly move-in ready, with gas central heating and double-glazing adding to its appeal. With attic space offering potential for future development (subject to planning approval), this property presents an exciting opportunity for growth. Don't miss out on the chance to secure your slice of suburban comfort—schedule a viewing today!
2 bedroom house for sale in 115 Lomondside Avenue, Clarkston, G76 — £299,000 • 2 bed • 2 bath • 936 ft²
2 bedroom end of terrace house for sale in The Oval, Clarkston, G76 — £180,000 • 2 bed • 1 bath • 684 ft²
2 bedroom terraced house for sale in Cromarty Gardens, Clarkston, Glasgow, G76 — £195,000 • 2 bed • 1 bath • 710 ft²
2 bedroom terraced house for sale in Monteith Drive, Clarkston, G76 — £210,000 • 2 bed • 1 bath • 666 ft²
3 bedroom terraced house for sale in Hillend Crescent, Clarkston, Glasgow, East Renfrewshire, G76 — £190,000 • 3 bed • 1 bath • 686 ft²
3 bedroom terraced house for sale in 88 Kilpatrick Gardens, Clarkston, G76 — £330,000 • 3 bed • 2 bath • 1185 ft²














































































































































































