YO23 1NL - 2 bed characterful victorian terrace in York Central, YO23…

View on Property Piper

2 bedroom terraced house for sale in Thorpe Street, Off Scarcroft Road, YO23

Summary - 2, Thorpe Street, YORK YO23 1NL

2 bed 2 bath Terraced

Two double bedrooms, original features and scope to modernise in a prime York location.
No onward chain, freehold Victorian mid-terrace
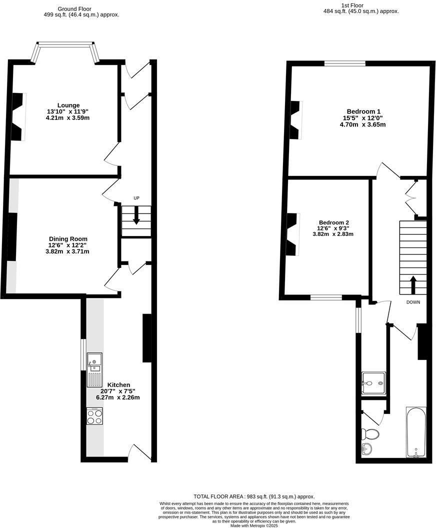
Set on a sought-after street just south of York city centre, this characterful Victorian mid-terrace offers immediate move-in potential with scope to modernise. The property retains many original features — bay windows, decorative ceilings, encaustic tiled hallway and period fireplaces — that give it clear period charm and strong curb appeal.

Accommodation is practical for a small family or professionals: two double bedrooms, two reception rooms, a 17' kitchen, separate shower room plus a three-piece bathroom. A compact rear paved courtyard and traditional front forecourt provide low-maintenance outdoor space and useful brick stores for bikes or bins. The home is chain free and freehold, with easy access to local shops, good schools and the city centre.

The house does need updating and refurbishment to reach its full potential. The walls are solid brick with no assumed insulation; the EPC rating is D67 and the property would benefit from modernisation to heating, insulation and finishes. Buyers should factor in renovation costs to improve energy efficiency and update bathrooms and kitchen.

This is a strong opportunity for a family seeking character close to amenities, or for a buyer who wants a period home they can personalise. An accompanied viewing is recommended to appreciate the original details and layout potential before works.

Property Details

Brochure Descriptions

Image Descriptions

Rooms

Textual Property Features

Target Audience

AI Tags

Detected Visual Features

EPC Details

Nearby Schools

Nearest Bars And Restaurants

,,,,}

Nearest General Shops

,,}

Nearest Grocery shops

,,}

Nearest Supermarkets

,,}

Nearest Religious buildings

,,}

Nearest Medical buildings

,,,}

Nearest Airports

}

Nearest Leisure Facilities

,,,,}

Nearest Tourist attractions

,,}

Nearest Train stations

,,,,}

Nearest Bus stations and stops

,,,,}

Nearest Hotels

,,}

Tags

Local Market Stats

AirBnB Data

Similar Properties

Meta

High Res Images

Compatible Images

Low res Images

Thumbnails

Raw Images

High Res Floorplan Images

Compatible Floorplan Images

Low res Floorplan Images

FloorplanImages Thumbnail

Raw Floorplan Images