Turnkey three-bedroom home with loft en suite on a generous plot.
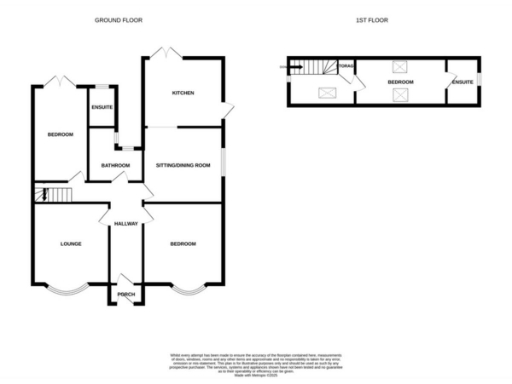
Detached bungalow on a large plot with long driveway and garage
Three spacious double bedrooms plus converted loft with private en suite
Extended kitchen/diner with vaulted ceiling, skylights and French doors
Immaculately renovated throughout — move-in ready condition
Occasional fourth room upstairs suitable as office or guest space
Cavity walls as-built with no added insulation assumed — upgrade potential
Mains gas boiler and radiators; fast broadband and excellent mobile signal
No flooding risk; council tax affordable; crime level average
This detached bungalow on Warren Lane offers generous, single-level living with added upstairs accommodation, ideal for downsizers seeking space without compromise. Set on a large plot with long driveway and garage, the house is immaculately presented following recent renovation and ready to move into.
The heart of the home is an extended kitchen/diner with vaulted ceiling, skylights and French doors that open to the rear garden — a bright, sociable space for entertaining or relaxed daily life. Three double bedrooms are complemented by a converted loft bedroom with a private en suite, giving flexible sleeping and guest arrangements.
Practical comforts include mains gas central heating, fast broadband, excellent mobile signal and an affordable council tax band. The property sits in a very affluent, comfortable suburb with good local schools and typical local amenities nearby.
A factual note on energy performance: the property has cavity walls as-built with no added insulation assumed, so there is scope to improve thermal efficiency if desired. Crime levels are average for the area. Overall, this home combines turnkey condition with potential for targeted upgrades, making it a rare, low-fuss option for those looking to downsize in style.
4 bedroom detached bungalow for sale in Warren Lane, Chapeltown, Sheffield, S35 — £425,000 • 4 bed • 2 bath • 1421 ft²
2 bedroom detached bungalow for sale in Bridle Crescent, Chapeltown, Sheffield, S35 2QX, S35 — £270,000 • 2 bed • 1 bath • 1001 ft²
2 bedroom detached house for sale in Hesley Grove, Chapeltown, Sheffield, S35 — £300,000 • 2 bed • 1 bath • 790 ft²
2 bedroom bungalow for sale in Mafeking Place, Chapeltown, Sheffield, South Yorkshire, S35 — £180,000 • 2 bed • 1 bath • 1232 ft²
3 bedroom bungalow for sale in Smithy Carr Avenue, Chapeltown, Sheffield, S35 — £280,000 • 3 bed • 1 bath • 855 ft²
2 bedroom bungalow for sale in Cotswold Avenue, Chapeltown, Sheffield, South Yorkshire, S35 — £290,000 • 2 bed • 1 bath • 838 ft²










































































































