**Standout Features:**
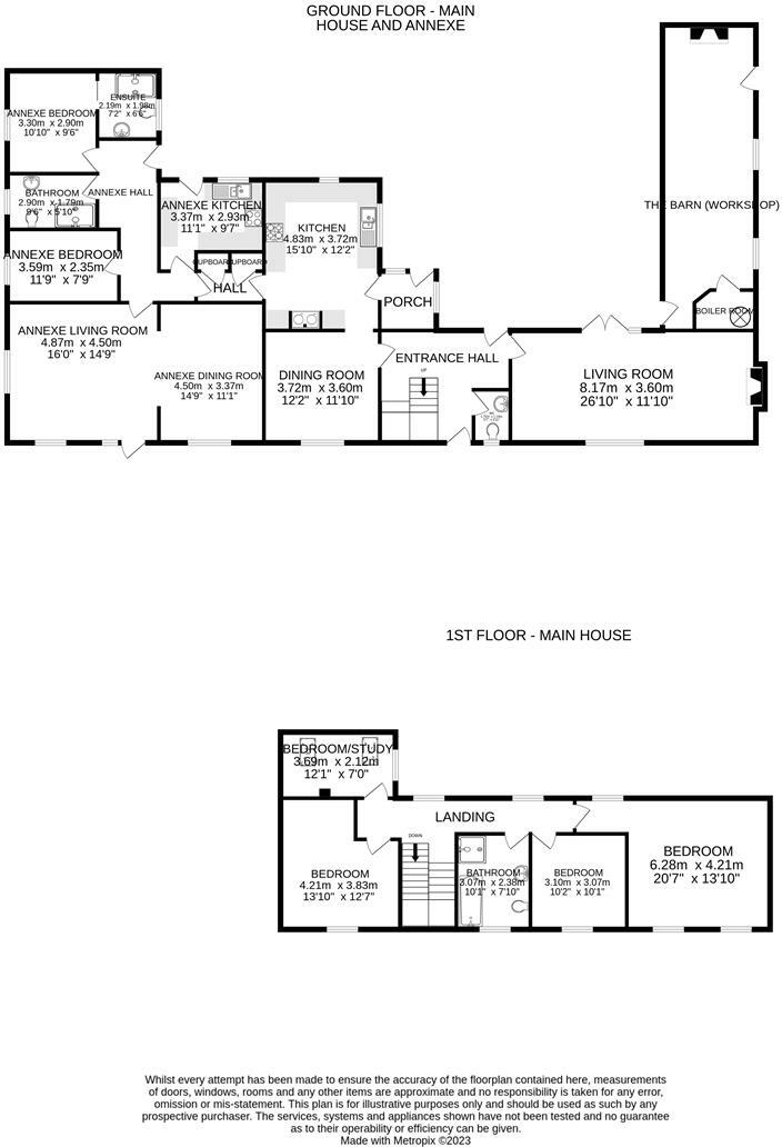
- **Spacious Accommodation:** Four-bedroom main house with a large two-bedroom, two-bathroom annex.
- **Versatile Barn Space:** Currently a workshop, offering potential for conversion to a studio or additional living space.
- **Enchanting Outdoors:** Beautifully landscaped gardens with a pagoda ideal for alfresco entertaining.
- **Ideal for Multi-Generational Living:** Annex provides privacy and independence.
- **No Onward Chain:** Immediate occupancy available.
- **EPC Rating:** D - 60, with environmental benefits from solar panels.
This stunning barn conversion is a unique country residence that seamlessly blends style and comfort. The main house features a cozy farmhouse kitchen, complete with an oil-fired Aga, a spacious dining room, and a welcoming lounge with a multi-fuel burner. All four bedrooms on the upper floor boast breathtaking rural views, accompanied by a luxurious family bathroom. The adjacent two-bedroom bungalow is an excellent option for multi-generational living or could provide a valuable rental income.
Surrounded by nearly half an acre of well-maintained gardens, complete with established trees and a charming pagoda for outdoor gatherings, this property offers a serene escape. The barn is an added bonus, serving as a workshop with conversion potential. Conveniently located near local amenities and access to stunning beaches, this home is a rare find for families seeking tranquility without sacrificing convenience. The property is chain-free, making it hassle-free for quick moves; don't miss the chance to embrace country living at its finest!
3 bedroom barn conversion for sale in Semi rural living on the outskirts of Helston, TR13 — £440,000 • 3 bed • 2 bath • 1281 ft²
5 bedroom barn conversion for sale in Barn conversion set within generous grounds, Crowntown, TR13 — £850,000 • 5 bed • 4 bath • 1895 ft²
3 bedroom detached house for sale in Goviley, Nr. Tregony, TR2 — £350,000 • 3 bed • 2 bath • 1492 ft²
3 bedroom semi-detached house for sale in Character, country, convenience, Sithney Green, TR13 — £425,000 • 3 bed • 2 bath • 776 ft²
3 bedroom barn conversion for sale in Beautiful barn conversion in a delightful rural setting, Tregarne, TR12 — £720,000 • 3 bed • 2 bath • 1909 ft²
4 bedroom detached house for sale in Brea Farm, near Sennen, TR19 — £595,000 • 4 bed • 3 bath • 2464 ft²


































































































































