Spacious family living with garden and conversion potential in sought-after Olveston.
Grade II listed six-bedroom detached village house over three floors
Large well-established gardens, patio, and day-long sun on rear lawns
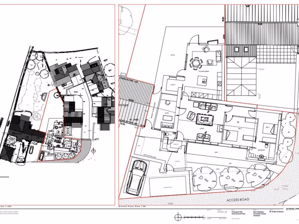
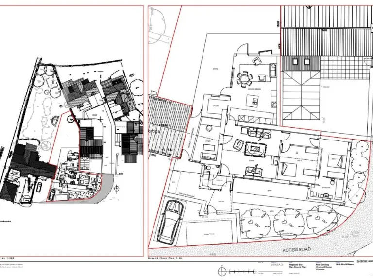
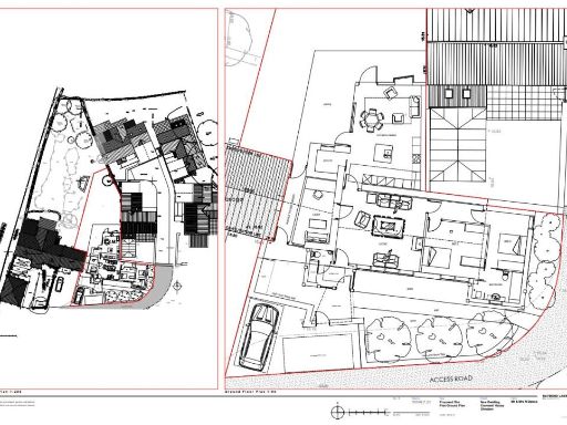
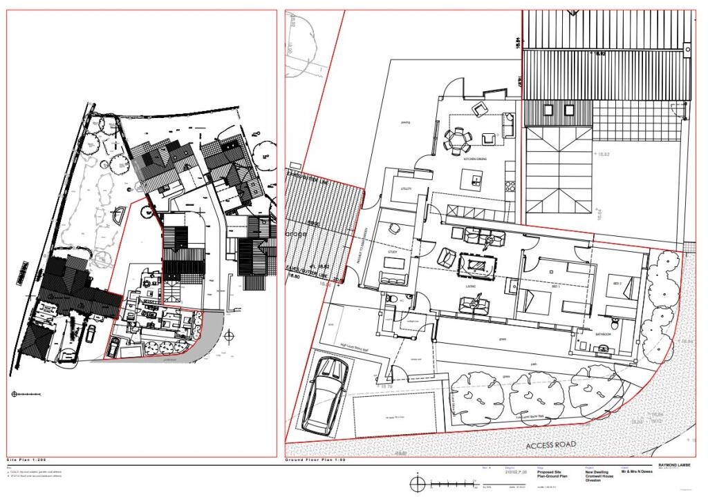
Planning permission (Ref P21/02916/F) granted to convert outbuildings
Extensive outbuildings: double garage, workshop, stores, 945 sq ft total
Expansive driveway and additional detached former butcher building/storage
Listed status will complicate alterations, repairs and extensions
Council Tax band noted as expensive; verify ongoing costs
Heating fuel records conflict (mains gas listed; later note of oil-fired)
This Grade II listed six-bedroom family home sits in the heart of Olveston with large, well-established gardens and plenty of character. The main house offers three floors of living including a generous sitting room, dining room with inglenook fireplace and a conservatory opening directly onto sunny lawns and patio — ideal for family life and entertaining.
The property includes extensive outbuildings (945 sq ft) comprising an attached double garage, workshop, stores and a former village butcher’s building. Planning permission was granted in 2021 (Ref P21/02916/F) to convert those outbuildings into a separate dwelling or additional accommodation, presenting clear development potential subject to executing the permission and any required consents.
Buyers should note the listed status of the house — this affords special character but will complicate alterations, repairs and extensions. Council Tax is described as expensive. There is an inconsistency in the records about heating fuel (mains gas is listed, with a later note of oil-fired central heating), so prospective purchasers should confirm current heating arrangements and running costs.
Set in a very affluent, low-crime village with a good primary school, nearby independent and state secondary options, and quick access to the M4/M5 interchange, this is a strong choice for families who want period character, generous outdoor space and clear scope to add value through permitted conversion of the outbuildings.
6 bedroom house for sale in Aust Road, Olveston, Bristol, BS35 — £1,350,000 • 6 bed • 7 bath • 5059 ft²
3 bedroom detached house for sale in Catherine Hill, Olveston, BS35 — £650,000 • 3 bed • 2 bath • 1294 ft²
6 bedroom house for sale in Aust Road, Olveston, Bristol, BS35 — £1,850,000 • 6 bed • 7 bath • 5953 ft²
3 bedroom semi-detached house for sale in Catherine Hill, Olveston, BS35 — £695,000 • 3 bed • 2 bath • 1239 ft²
4 bedroom detached house for sale in Peacehaven, The Street, Olveston, BS35 — £725,000 • 4 bed • 2 bath • 1249 ft²
2 bedroom detached bungalow for sale in Vicarage Lane, Olveston, BS35 — £700,000 • 2 bed • 1 bath • 965 ft²






























































































