Renovated four-bedroom property with rural views and generous parking.
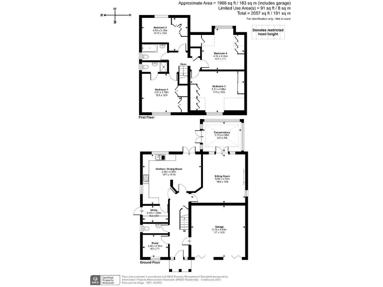
Over 2,000 sq ft of accommodation across two floors
Set at the end of a quiet cul-de-sac in Landkey, this attractive four-bedroom detached house offers over 2,000 sq ft of family-focused living with far-reaching countryside views. Built in 1999 and recently renovated, the home combines modern kitchen fittings, a new family shower room and energy-saving solar panels with practical features such as a log burner and an integral double garage.
Ground-floor living is flexible and sociable: a generous sitting room centered on the log burner flows through French doors into a conservatory, while an L-shaped kitchen/dining room opens directly to the sunny rear garden. There is useful utility space, a study ideal for home working, and a downstairs WC. Upstairs provides four double bedrooms — the principal bedroom benefits from a vaulted ceiling, fitted wardrobes and an ensuite.
Outside, the property sits on a decent plot with private, lawned gardens, a stone patio and parking for multiple vehicles — space suitable for a motorhome, caravan or boat. The location is rural and peaceful yet only a few miles from Barnstaple, with good local schools and low crime in an affluent area.
Practical considerations: council tax is band F, which buyers should factor into running costs. The conservatory has a recently upgraded polycarbonate roof rather than tiled glazing; double glazing is present but install dates are unspecified. Mobile signal is average. Overall this is a spacious, energy-efficient family home offering excellent indoor–outdoor flow and scope to suit growing household needs.
4 bedroom detached house for sale in Cherry Tree Drive, Landkey, Barnstaple, Devon, EX32 — £415,000 • 4 bed • 2 bath • 1320 ft²
4 bedroom detached house for sale in Castle Court, Landkey, Barnstaple, EX32 — £430,000 • 4 bed • 2 bath • 1310 ft²
4 bedroom bungalow for sale in Acland Road, Landkey, Barnstaple, Devon, EX32 — £475,000 • 4 bed • 3 bath • 1827 ft²
4 bedroom detached house for sale in Acland Road, Landkey, Barnstaple, EX32 — £750,000 • 4 bed • 2 bath • 1339 ft²
4 bedroom house for sale in The Orchards, Landkey, Barnstaple, EX32 — £460,000 • 4 bed • 2 bath • 1045 ft²
4 bedroom detached house for sale in Valley View, Landkey, Barnstaple, Devon, EX32 — £495,000 • 4 bed • 2 bath • 1651 ft²


































































