LN6 0HZ - 2 bedroom detached house for sale in Meadowlake Crescent, L…

View on Property Piper

2 bedroom detached house for sale in Meadowlake Crescent, Lincoln, LN6

Summary - 63, Meadowlake Crescent, LINCOLN LN6 0HZ

2 bed 1 bath Detached

Level-access two-bedroom bungalow with garage, generous parking and low-maintenance garden..
Two double bedrooms suitable for downsizing comfort
16'8" lounge-diner with large rear garden window
11'1" kitchen with bay window overlooking garden
Modern central heating boiler and uPVC double glazing
Driveway for several cars plus brick-built garage
Low-maintenance rear garden, large plot for the area
Offered chain free; freehold, council tax band B
Wet room instead of a bath — may not suit all buyers
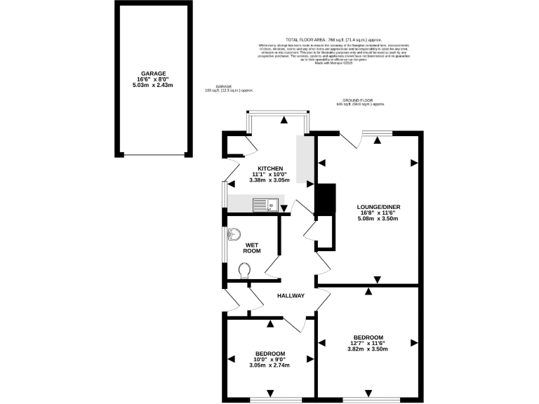
This tidy detached bungalow on Meadowlake Crescent offers straightforward, single-storey living ideal for downsizers or those seeking level access. The accommodation includes two double bedrooms, a 16'8" lounge-diner and an 11'1" kitchen with a bay window overlooking the low-maintenance rear garden.

Practical features include a modern central heating boiler, uPVC double glazing, a driveway with space for several cars and a brick-built garage. The property is offered chain free and sits within easy walking distance of Hartsholme Country Park and under a mile from the A46 bypass, making local shops and routes accessible.

Rooms are average in size with standard ceiling heights, so the layout works well for comfortable, uncomplicated living rather than expansive entertaining. The bathroom is a modern wet room, which is convenient for mobility but may not suit buyers preferring a traditional bath.

Overall this freehold bungalow presents a low-maintenance option in an affluent, low-crime area with fast broadband and good mobile signal. It will particularly appeal to buyers wanting single-floor convenience and outdoor space without heavy garden upkeep.

Property Details

Image Descriptions

Floorplan Description

Rooms

Textual Property Features

Target Audience

AI Tags

Detected Visual Features

Nearby Schools

Nearest Bars And Restaurants

,,,,}

Nearest General Shops

,,}

Nearest Grocery shops

,,}

Nearest Supermarkets

,,}

Nearest Religious buildings

,,}

Nearest Medical buildings

,,,}

Nearest Leisure Facilities

,,,,}

Nearest Tourist attractions

,,}

Nearest Train stations

,,,,}

Nearest Bus stations and stops

,,,,}

Nearest Hotels

,,}

Tags

Local Market Stats

Similar Properties

Meta

High Res Images

Compatible Images

Low res Images

Thumbnails

Raw Images

High Res Floorplan Images

Compatible Floorplan Images

Low res Floorplan Images

FloorplanImages Thumbnail

Raw Floorplan Images