RG22 6LN - 2 bedroom bungalow for sale in Brackley Way, Berg Estate, B…

View on Property Piper

2 bedroom bungalow for sale in Brackley Way, Berg Estate, Basingstoke, RG22

Summary - 15 BRACKLEY WAY BASINGSTOKE RG22 6LN

2 bed 1 bath Bungalow

Refurbished two-bedroom bungalow with garage, driveway and low-maintenance garden.
Detached single-storey bungalow, freehold, no onward chain
This detached two-bedroom bungalow on Brackley Way has been recently modernised and offers single-level, move-in-ready living ideal for downsizers or buyers seeking low-maintenance accommodation. The property benefits from a refitted kitchen and shower room, a new boiler with radiators, replacement double glazing and a paved, low-maintenance rear garden with a pergola seating area.

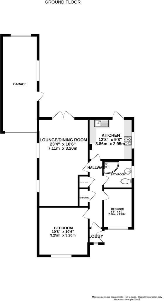
Internally the accommodation is compact (approximately 537 sq ft) and practical: entrance hall, two bedrooms, and a generous lounge that formerly incorporated a third bedroom (can be reinstated but would need partitioning). There is a single shower room only, so buyers should note this limits household flexibility compared with larger homes.

Outside, the bungalow is detached with a substantial front driveway and single garage for off-street parking. The plot is tidy and low-maintenance with paved areas, raised beds and side access. The location on the Berg Estate places local shops, buses, and several 'Good' primary and secondary schools within easy reach. There is no onward chain and the property is freehold.

Drawbacks to note: the overall internal floor area is small, so storage and living space are limited compared with larger bungalows, and there is only one bathroom. While recently renovated, buyers wanting more generous living areas or significant extension potential should check planning/plot constraints and room proportions before viewing.

Property Details

Brochure Descriptions

Image Descriptions

Floorplan Description

Rooms

Textual Property Features

Target Audience

AI Tags

Detected Visual Features

EPC Details

Nearby Schools

Nearest Bars And Restaurants

,,,,}

Nearest General Shops

,,}

Nearest Grocery shops

,,}

Nearest Supermarkets

,,}

Nearest Religious buildings

,,}

Nearest Medical buildings

,,,}

Nearest Leisure Facilities

,,,,}

Nearest Tourist attractions

,,}

Nearest Train stations

,,,,}

Nearest Bus stations and stops

,,,,}

Nearest Hotels

,,}

Tags

Local Market Stats

AirBnB Data

Similar Properties

Meta

High Res Images

Compatible Images

Low res Images

Thumbnails

Raw Images

High Res Floorplan Images

Compatible Floorplan Images

Low res Floorplan Images

FloorplanImages Thumbnail

Raw Floorplan Images