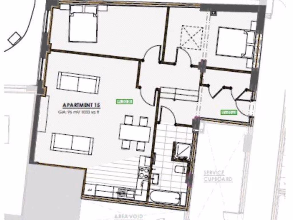
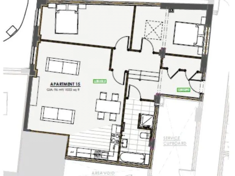
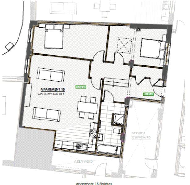
**Standout Features:**
- Spacious first-floor apartment with a large open-plan living area
- Two double bedrooms, including one with remote-controlled skylights
- Modern bathroom and high-quality fixtures throughout
- Secure entry and a 10-year insurance-backed guarantee
- Chain-free sale in a central town location with excellent transport links
**Summary:**
Discover unparalleled urban living in this striking first-floor apartment, set in the heart of Chester le Street. Boasting over 1,046 square feet of well-designed space, this new build features a vast open-plan living area that radiates a contemporary "loft" feel, ideal for entertaining or relaxing. Both double bedrooms are generously sized, with the second bedroom luxuriously enhanced by remote-controlled skylights. Enjoy a modern bathroom and a hallway spacious enough for a cozy reading nook.
With a 10-year insurance-backed guarantee, the property ensures peace of mind for potential buyers. Located steps away from a vibrant array of shops, cafes, and essential services, this apartment offers convenience and accessibility, making it a perfect fit for families, first-time buyers, or savvy investors seeking rental potential.
However, be aware of the surrounding area's high crime rate and the need for specific maintenance-related tasks due to the flat's urban setting. The property expenses include a service charge of £1,012 and a ground rent of £100. Given its competitive price of £145,000, this apartment represents an inviting opportunity that won't last long—secure your place in this sought-after community today!
2 bedroom flat for sale in Cuthbert House, Cooperative Street, Chester Le Street, DH3 — £150,000 • 2 bed • 1 bath • 1068 ft²
2 bedroom flat for sale in Cuthbert House, Cooperative Street, Chester Le Street, DH3 — £135,000 • 2 bed • 1 bath • 888 ft²
2 bedroom flat for sale in Cuthbert House, Cooperative Street, Chester Le Street, DH3 — £150,000 • 2 bed • 1 bath • 1168 ft²
2 bedroom flat for sale in Cuthbert House, Cooperative Street, Chester Le Street, DH3 — £150,000 • 2 bed • 1 bath • 1167 ft²
2 bedroom flat for sale in Cuthbert House, Cooperative Street, Chester Le Street, DH3 — £150,000 • 2 bed • 1 bath • 1140 ft²
2 bedroom flat for sale in Cuthbert House, Cooperative Street, Chester Le Street, DH3 — £140,000 • 2 bed • 1 bath • 1190 ft²


















































































































































