**Standout Features:**
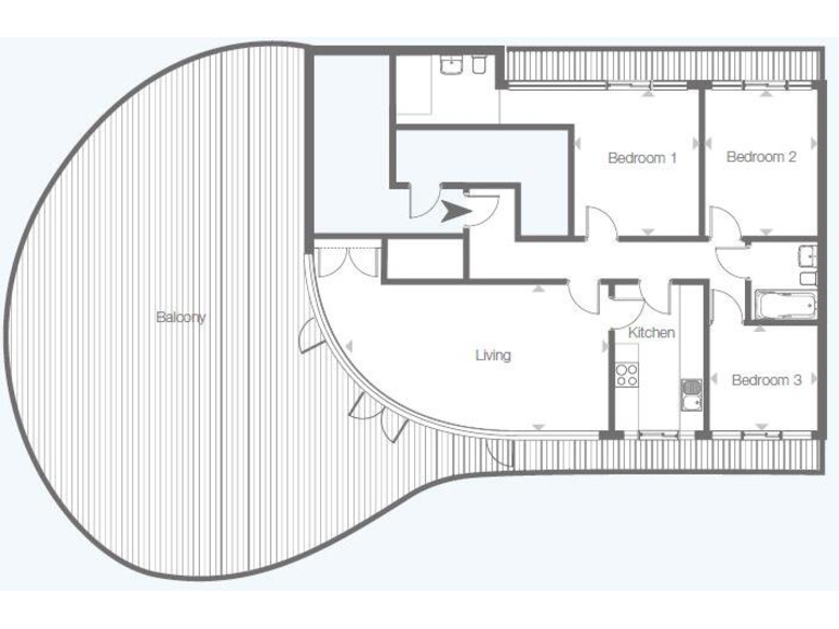
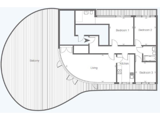
- Three-bedroom penthouse with stunning panoramic views of the London skyline
- Expansive 60m² private terrace, perfect for outdoor living
- Shared ownership opportunity: 25% share available for £187,500
- Minimum deposit of only 5%
- Excellent transport links with Colliers Wood underground station nearby
**Summary:**
Discover this contemporary three-bedroom penthouse apartment in the vibrant area of Colliers Wood, offering an excellent opportunity for first-time buyers or those looking to step onto the property ladder through a shared ownership scheme. Priced at £187,500 for a 25% share, this modern home features a spacious living room, a separate kitchen, and three well-sized bedrooms, including an ensuite master suite. The highlight is the impressive 60m² private terrace, perfect for enjoying breathtaking views of London.
Convenience is at your doorstep with nearby shops, cafes, and excellent travel links including the Northern Line for quick access across the city. The property also has affordability in mind, with a monthly charge of approximately £1,331.21 (including rent and service charges). However, be aware of an annual rent increase each April. Offering a contemporary urban living experience, this penthouse is not just a home, but a lifestyle choice—don’t miss out on the chance to make it yours!
1 bedroom flat for sale in Cavendish Road, Colliers Wood, SW19 — £103,750 • 1 bed • 1 bath • 622 ft²
3 bedroom flat for sale in Cavendish Road, LONDON, SW19 — £216,000 • 3 bed • 2 bath • 907 ft²
2 bedroom flat for sale in Cavendish Road, Colliers Wood, SW19 — £142,500 • 2 bed • 1 bath • 701 ft²
1 bedroom flat for sale in Magdalen Road, Wandsworth, London, SW18 — £212,500 • 1 bed • 1 bath • 570 ft²
1 bedroom flat for sale in Park Road, Colliers Wood, London, SW19 — £110,250 • 1 bed • 1 bath • 437 ft²
1 bedroom apartment for sale in Flat 22, 89 Park Road, London, SW19 — £178,750 • 1 bed • 1 bath • 448 ft²


































































