Three-bed link detached with garage, garden and no upward chain in popular Ely..
Three bedrooms, master with en-suite
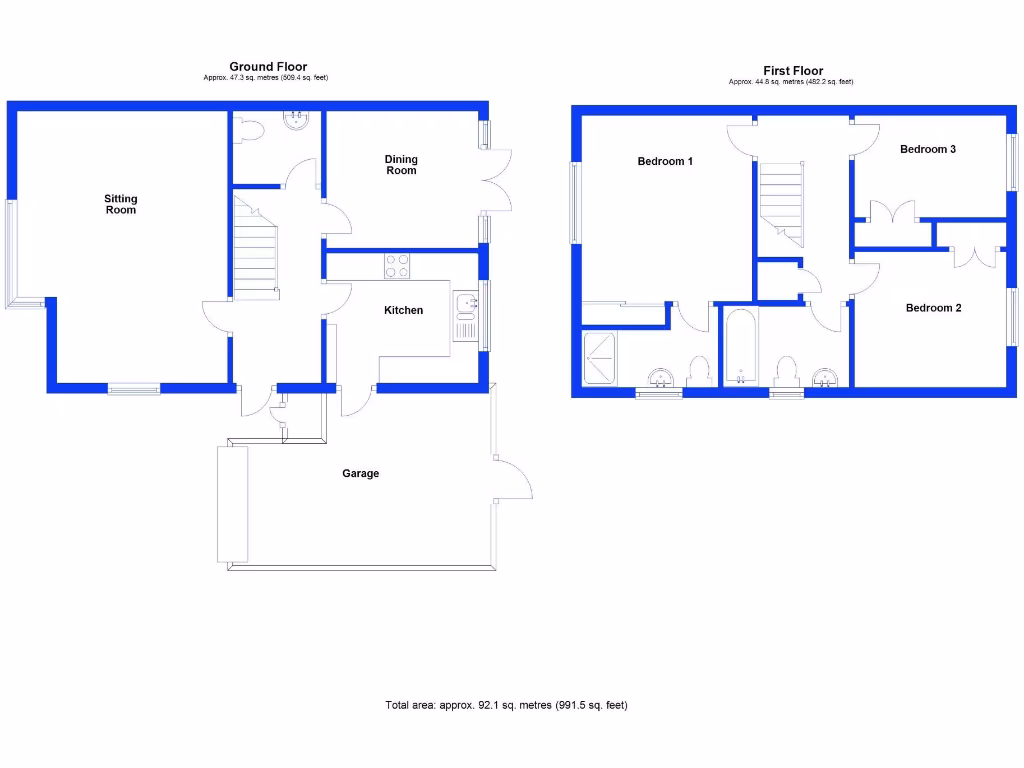
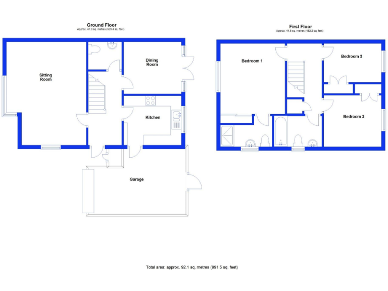
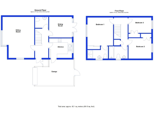
Set on a quiet cul-de-sac close to local schools and a short walk from Ely city centre, this three-bedroom link-detached home offers practical family living with immediate occupation available. The ground floor features a spacious living room with box bay window, separate dining room opening onto a private rear garden, and a fitted kitchen with access to the single garage. The master bedroom benefits from an en-suite; two further bedrooms share the family bathroom.
The property sits on a decent plot with driveway parking and an attached garage providing secure parking and storage. Fast broadband, good local schooling and direct rail links into Cambridge make this a convenient base for commuting families or professionals. The house is chain-free, which supports a quicker, less complicated move.
The interior and garden are in sound, functional condition but would benefit from light cosmetic updating and garden tidying to maximise appeal. Room sizes and overall footprint are average for the area; the single garage and driveway provide limited parking for larger households. Overall this is a straightforward, well-located family home with scope to personalise and add value.
3 bedroom link detached house for sale in John Amner Close, Ely, CB6 — £375,000 • 3 bed • 3 bath • 739 ft²
3 bedroom link detached house for sale in John Amner Close, Ely, CB6 — £445,000 • 3 bed • 2 bath • 1077 ft²
4 bedroom detached house for sale in Leicester Close, Ely, Cambridgeshire, CB6 — £495,000 • 4 bed • 2 bath • 1181 ft²
3 bedroom house for sale in The Medway, Ely, Cambridgeshire, CB6 — £350,000 • 3 bed • 2 bath • 807 ft²
4 bedroom detached house for sale in Wrens Close, Ely, Cambridgeshire, CB6 — £550,000 • 4 bed • 2 bath • 1431 ft²
3 bedroom semi-detached house for sale in Felton Way, Ely, Cambridgeshire, CB6 — £335,000 • 3 bed • 1 bath • 753 ft²


















































