S35 0DG - 3 bedroom semidetached house for sale in Dixon Drive, Wharn…

View on Property Piper

3 bedroom semi-detached house for sale in Dixon Drive, Wharncliffe Side, Sheffield, S35 0DG, S35

Summary - 19 Dixon Drive,Wharncliffe Side,SHEFFIELD,S35 0DG S35 0DG

3 bed 1 bath Semi-Detached

**Property Highlights:**
- Three-bedroom semi-detached home in Wharncliffe Side
- Attractive presentation with generous outdoor space
- Non-standard construction, cash buyers only
- Bright, spacious lounge diner and modern galley-style kitchen
- Large garden featuring a raised seating area and countryside views
- Off-street parking and secure storage
- Local amenities and excellent transport links to Sheffield

Nestled in the idyllic village of Wharncliffe Side, this charming three-bedroom semi-detached home seamlessly combines comfort and potential. With a modern galley-style kitchen and a bright lounge diner that enjoys abundant natural light, this well-presented property offers a cozy yet spacious feel. The generous garden is ideal for family gatherings, featuring a raised paved area and a large lawn surrounded by mature hedging, all while providing elevated views of the picturesque countryside.

While the property’s non-standard construction means it's cash buyers only, it still holds immense appeal for families and investors alike, given its spacious layout and proximity to local amenities, schools, and the stunning natural beauty of Wharncliffe Woods and the Peak District.

This semi-rural setting perfectly balances tranquility with accessibility, boasting strong public transport links and easy access to the A61 and M1 motorway. With a price tag of £120,000, opportunities like this in such a desirable location are rare. Seize the chance to secure your future in this lovely community today!

Property Details

Image Descriptions

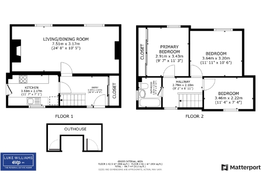
Floorplan Description

Rooms

Textual Property Features

Detected Visual Features

Nearby Schools

Nearest Bars And Restaurants

,,,,}

Nearest General Shops

,,}

Nearest Grocery shops

,,}

Nearest Supermarkets

,,}

Nearest Religious buildings

,,}

Nearest Medical buildings

,,,}

Nearest Leisure Facilities

,,,,}

Nearest Tourist attractions

,,}

Nearest Train stations

,,,,}

Nearest Bus stations and stops

,,,,}

Nearest Hotels

,,}

Tags

Local Market Stats

Similar Properties

Meta

High Res Images

Compatible Images

Low res Images

Thumbnails

Raw Images

High Res Floorplan Images

Compatible Floorplan Images

Low res Floorplan Images

FloorplanImages Thumbnail

Raw Floorplan Images