Spacious 3-bed with skyline views and luxury leisure facilities.
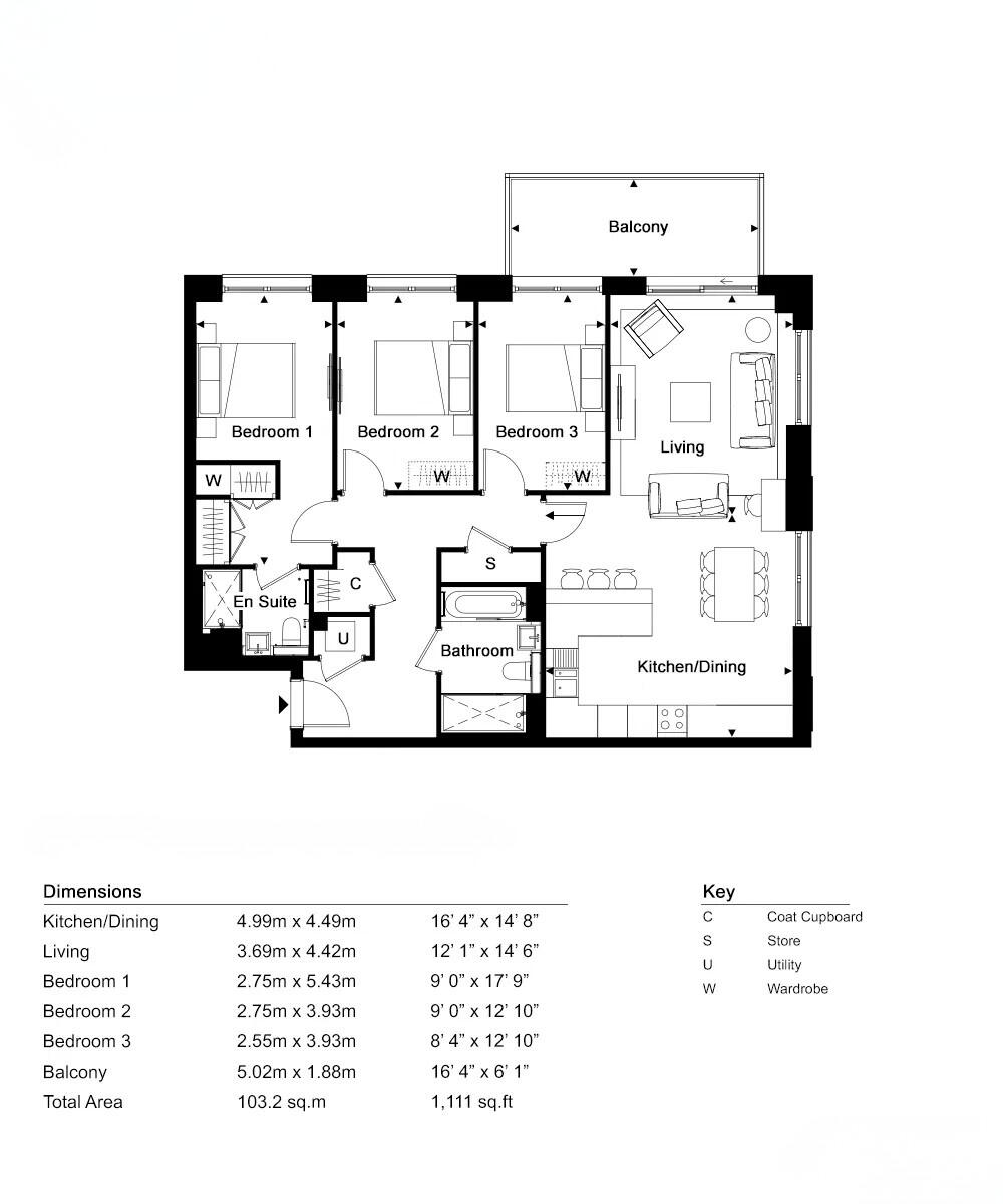
• 1111 sq ft three-bedroom apartment with river and skyline views
• 10th-floor private balcony facing River Lea and Canary Wharf
• Open-plan living with modern integrated kitchen appliances
• Residents' gym, indoor pool, spa and 24/7 concierge included
• Ready to move in; new-build finishes throughout
• 7 minutes to London City Airport via DLR; excellent transport links
• Leasehold with 999 years remaining (long lease)
• Local area: above-average crime and very deprived classification
This contemporary three-bedroom apartment occupies the 10th floor and offers 1,111 sq ft of open-plan living with floor-to-ceiling windows and a private balcony overlooking the river and Canary Wharf skyline. The modern integrated kitchen and well-proportioned living space suit professionals or families wanting a ready-to-move-in home in a regenerated riverside setting.
Residents benefit from extensive on-site facilities including a gym, indoor pool, spa and 24/7 concierge, plus landscaped grounds and a 2.5-acre riverside park that add leisure and community value. Excellent transport links include a 7-minute DLR ride to London City Airport and quick access to Canary Wharf, Stratford and central London.
Important practical points: the property is leasehold (999 years remaining) and is a new-build with contemporary finishes. Local indicators show above-average crime and a highly deprived area classification, so buyers should weigh the strong amenity and transport offering against local social and safety factors.
Nearby schooling is good-to-outstanding at primary and secondary levels, supporting family use. This apartment will suit buyers seeking low-maintenance, modern riverside living with strong commuter access, or investors targeting rental demand in an established renting-families area.
3 bedroom apartment for sale in Leven Road, London, E14 — £930,000 • 3 bed • 2 bath • 1111 ft²
3 bedroom apartment for sale in Heron Wharf,
Leven Road,
London,
E14 — £930,000 • 3 bed • 2 bath • 1111 ft²
3 bedroom apartment for sale in Bonnet Street, London, E16 — £825,000 • 3 bed • 3 bath
2 bedroom apartment for sale in Leven Road, London, E14 — £630,000 • 2 bed • 2 bath • 758 ft²
3 bedroom apartment for sale in 141 Leven Rd, Poplar Riverside, E14 — £890,000 • 3 bed • 3 bath • 1111 ft²
3 bedroom apartment for sale in Heron Wharf,
Leven Road,
London,
E14 — £890,000 • 3 bed • 2 bath • 1111 ft²


























































