Well-presented semi with two parking spaces and a sunny west garden.
Two double bedrooms on first floor
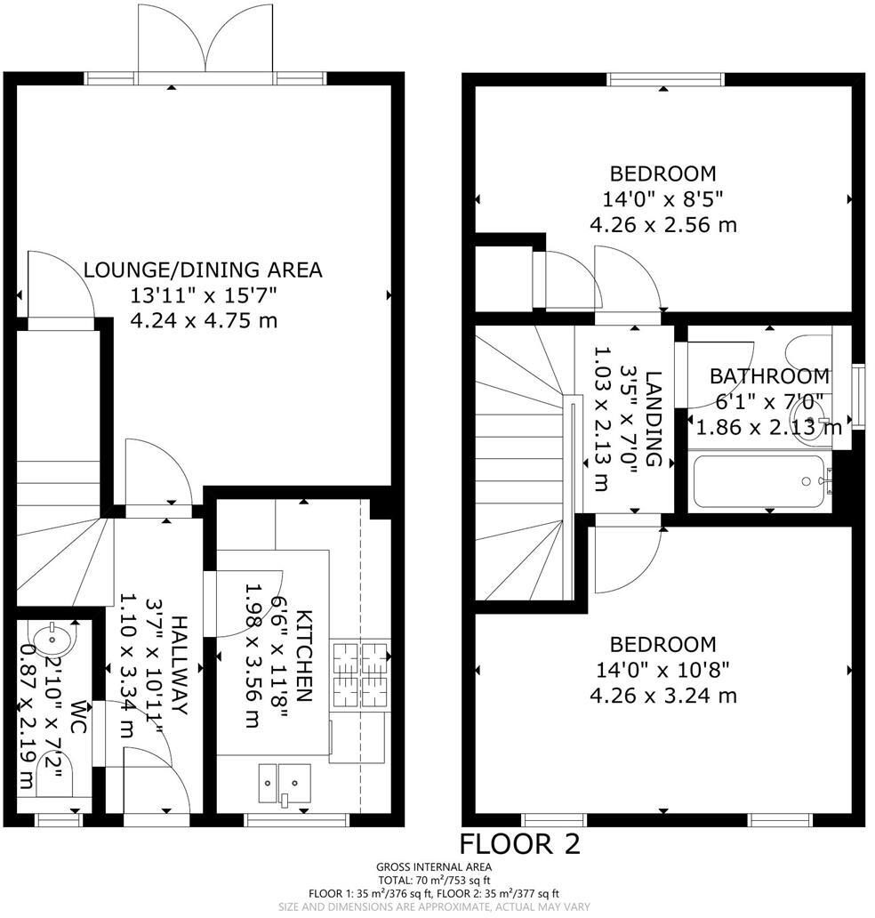
This modern two-bedroom semi-detached house on a popular development in Hellingly offers straightforward, low-maintenance living ideal for a first-time buyer or investor. The ground floor provides a fitted kitchen with integrated appliances and a bright lounge/dining room with patio doors opening to a west-facing garden that captures afternoon sun. Two allocated off-street parking spaces sit to the front for easy everyday parking.
Both bedrooms are doubles and the property is served by a single family bathroom on the first floor, making the layout efficient but compact. Interior finishes are neutral and well presented, so the home is move-in ready with scope for modest cosmetic updates if desired. Heating is by mains‑gas boiler and radiators; the building’s fabric shows average thermal performance.
The location is convenient for local shops, bus links and nearby primary schools rated Good; however, the nearest state secondary has a less positive inspection outcome, which buyers with older children should note. The plot and garden are modest and low-maintenance rather than generous — good for easy upkeep but limiting for those seeking large outdoor space.
Overall this freehold townhouse offers practical value: sensible running costs, two parking spaces, good digital connectivity and a compact, efficient footprint. It suits first-time buyers wanting a ready-made home, or landlords seeking a straightforward buy‑to‑let in a quiet residential setting.
2 bedroom semi-detached house for sale in Trefoil Road, Hellingly, Hailsham, BN27 — £289,950 • 2 bed • 1 bath • 751 ft²
2 bedroom semi-detached house for sale in Melrose Close, Hailsham, BN27 — £285,000 • 2 bed • 1 bath • 756 ft²
2 bedroom semi-detached house for sale in Akehurst Close, Hellingly, Hailsham, BN27 — £285,000 • 2 bed • 2 bath • 727 ft²
2 bedroom terraced house for sale in Farne Close, Hailsham, BN27 — £275,000 • 2 bed • 1 bath • 655 ft²
2 bedroom semi-detached house for sale in Tower Crescent, Hailsham, BN27 — £285,000 • 2 bed • 2 bath • 754 ft²
2 bedroom end of terrace house for sale in Malthouse Way, Hailsham, BN27 — £280,000 • 2 bed • 2 bath • 619 ft²


























































































