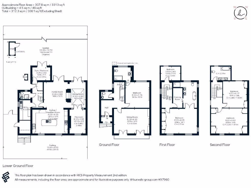
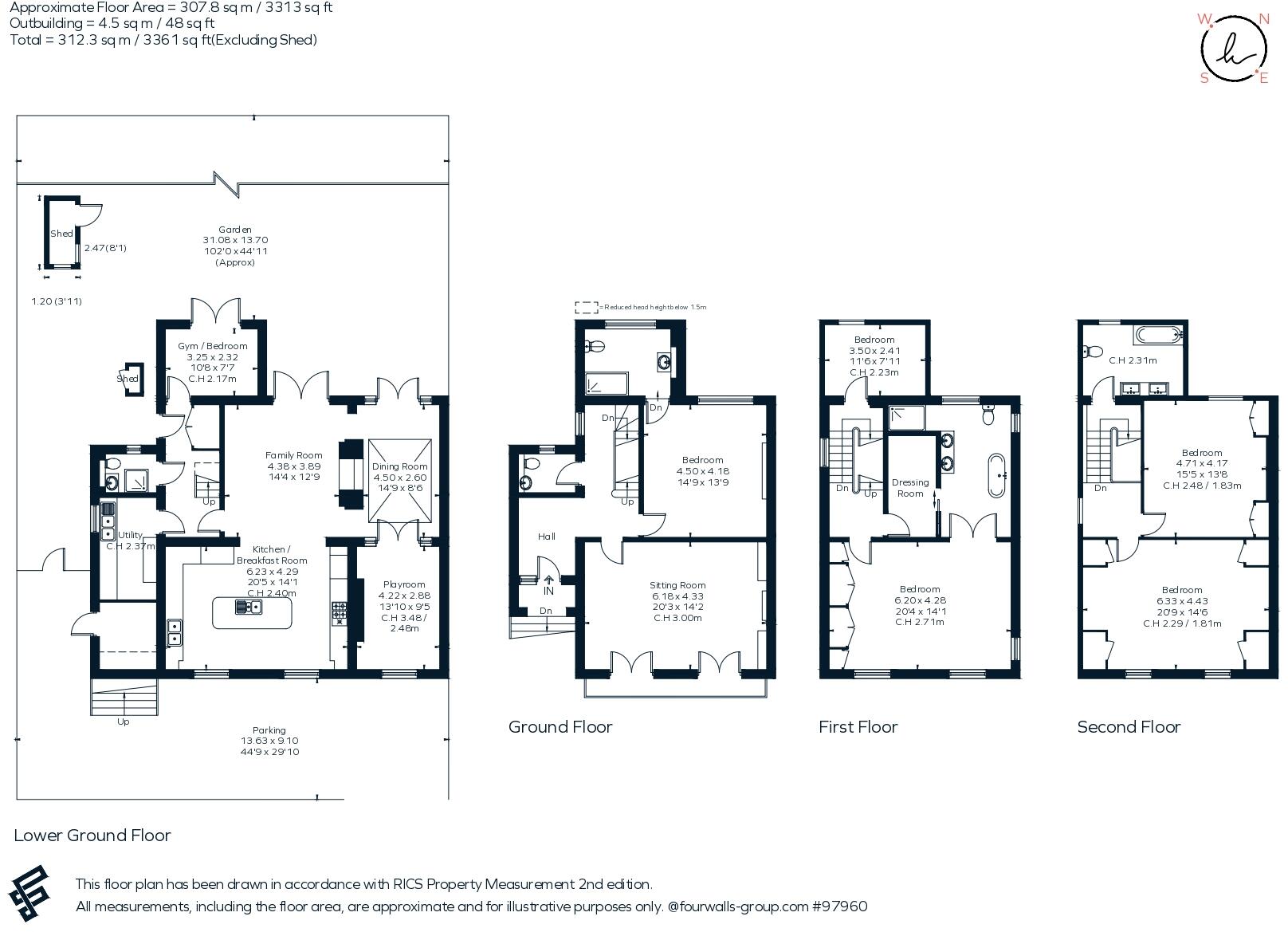
Large, characterful four‑storey detached house with huge garden in Crystal Palace.
- Approximately 3,313 sq ft across four storeys with high ceilings and period features
- Large secluded rear garden extending to roughly 100 ft
- Off-street parking for two to three cars on private driveway
- Four reception rooms, five bedrooms, three bathrooms and utility room
- Period solid-brick construction (c.1900–1929); likely no wall insulation
- Conservation area — exterior/alterations may face restrictions
- Fast broadband and excellent mobile signal; close to Crystal Palace station
- Area shows average crime and local pockets of deprivation
This four-storey Victorian detached house on Hamlet Road offers substantial, well-proportioned living across approximately 3,313 sq ft — ideal for a growing family seeking period character and generous outdoor space. Ground-floor reception rooms open onto a long, secluded rear garden (circa 100 ft) and there is off-street parking for two to three cars. High ceilings, sash windows, wooden floorboards and original cornicing provide authentic charm throughout.
The layout includes four reception rooms, five bedrooms, three shower/bathrooms, a utility room, separate WCs and a dressing room/nursery — flexible space for home working, childcare or multigenerational living. Practical modern benefits include mains gas central heating, double glazing and fast broadband with excellent mobile signal, supporting an established tech-worker community nearby.
Buyers should be aware this is a solid-brick period build (c.1900–1929) with assumed no cavity wall insulation; the house may benefit from targeted energy upgrades and sympathetic modernisation to improve comfort and running costs. The property lies within a conservation area, so alterations may be subject to restrictions. Local area metrics show average crime and pockets of deprivation despite excellent local schools and strong transport links to central London.
Priced at £2,500,000 freehold, this is a substantial period family home in Crystal Palace with real upside for buyers who value space, character and proximity to parks, independent shops and good schools. Those seeking a turnkey, fully modernised dwelling should factor renovation and energy-improvement works into their budget.
4 bedroom detached house for sale in Hamlet Road, Crystal Palace, London, SE19 — £1,250,000 • 4 bed • 1 bath • 1847 ft²
5 bedroom detached house for sale in Maberley Road, Crystal Palace, London, SE19 — £1,750,000 • 5 bed • 3 bath • 2722 ft²
5 bedroom detached house for sale in Belvedere Road, London, SE19 — £2,500,000 • 5 bed • 2 bath • 3501 ft²
9 bedroom detached house for sale in Harold Road, London, SE19 — £2,000,000 • 9 bed • 3 bath • 5681 ft²
5 bedroom end of terrace house for sale in Woodland Road, Crystal Palace, SE19 — £1,049,000 • 5 bed • 2 bath • 1610 ft²
5 bedroom house for sale in Coxwell Road, London, SE19 — £1,195,000 • 5 bed • 3 bath • 2161 ft²


























































































































































