**Standout Features:**
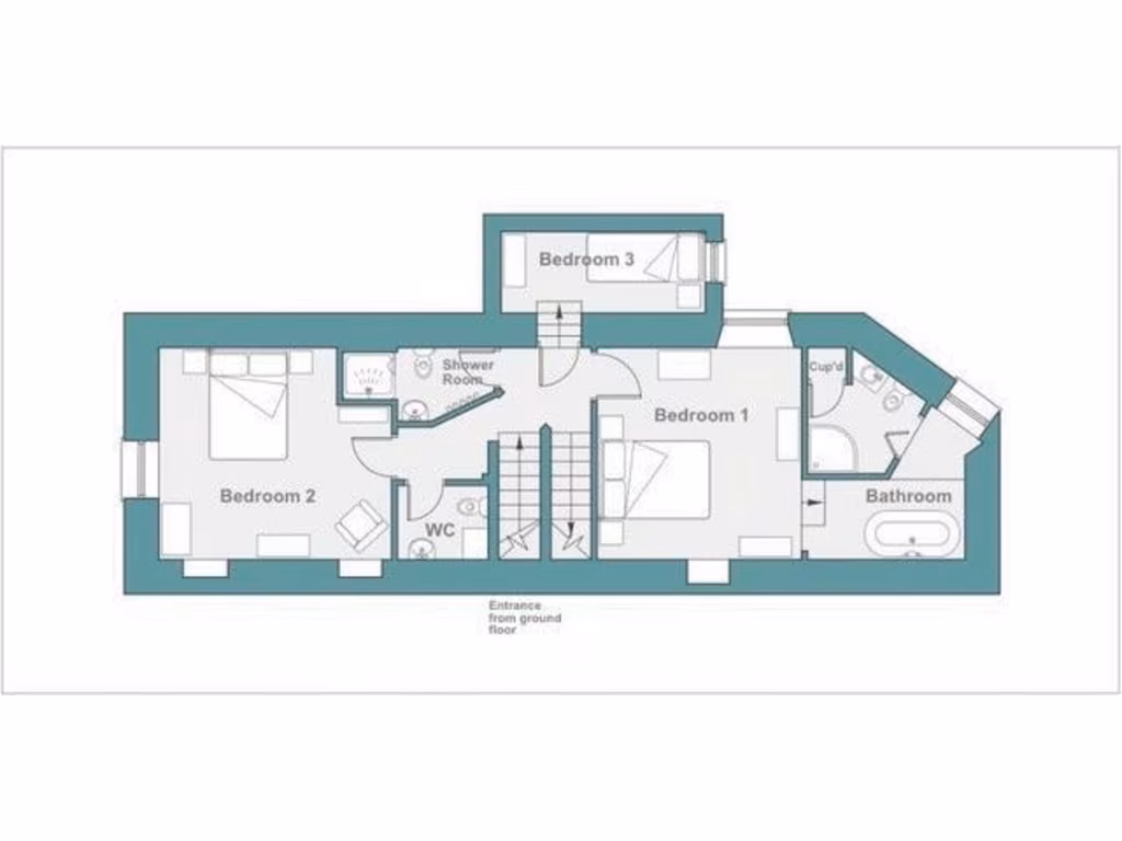
- 3 spacious bedrooms, including a main en-suite
- Tucked-away location off Fore Street, providing a serene atmosphere
- Rooftop balcony with stunning views of Smeatons Pier and St Ives Bay
- Character cottage with open-plan living, rustic wooden beams, and high ceilings
- Currently a successful holiday let, offering investment potential
- Gas central heating for comfort
**Concise Summary:**
Discover this charming 3-bedroom cottage in the heart of St Ives, Cornwall, perfect for families or investors seeking vacation rental opportunities. Spread across three floors, it features a welcoming open-plan living area with rustic beams and a high ceiling, seamlessly blending comfort and style. The main en-suite bedroom provides a private retreat, while the rooftop balcony offers breathtaking views of Smeatons Pier and St Ives Bay—a perfect spot for morning coffee or evening relaxation.
Although tucked away from the hustle, you're moments from vibrant local amenities, including cafes, shops, and the stunning coastline. While the average crime rate and slow broadband speeds indicate a need for awareness, the character and rental history of this home may offset concerns for many buyers. Schedule a viewing to fully appreciate this exceptional property; opportunities like this in such a sought-after location are rare and won't last long!
3 bedroom cottage for sale in St Ives, Cornwall , TR26 — £535,000 • 3 bed • 3 bath
3 bedroom cottage for sale in St Ives, Cornwall , TR26 — £495,000 • 3 bed • 2 bath
3 bedroom cottage for sale in Street-An-Garrow, St. Ives, TR26 — £455,500 • 3 bed • 1 bath • 855 ft²
2 bedroom cottage for sale in St Ives, Cornwall, TR26 — £425,000 • 2 bed • 1 bath
3 bedroom cottage for sale in St Ives, Cornwall , TR26 — £525,000 • 3 bed • 2 bath
3 bedroom terraced house for sale in The Digey, St. Ives, Cornwall, TR26 — £425,000 • 3 bed • 2 bath • 706 ft²










































































