Ideal family home on sought-after Redrow development close to village and schools.
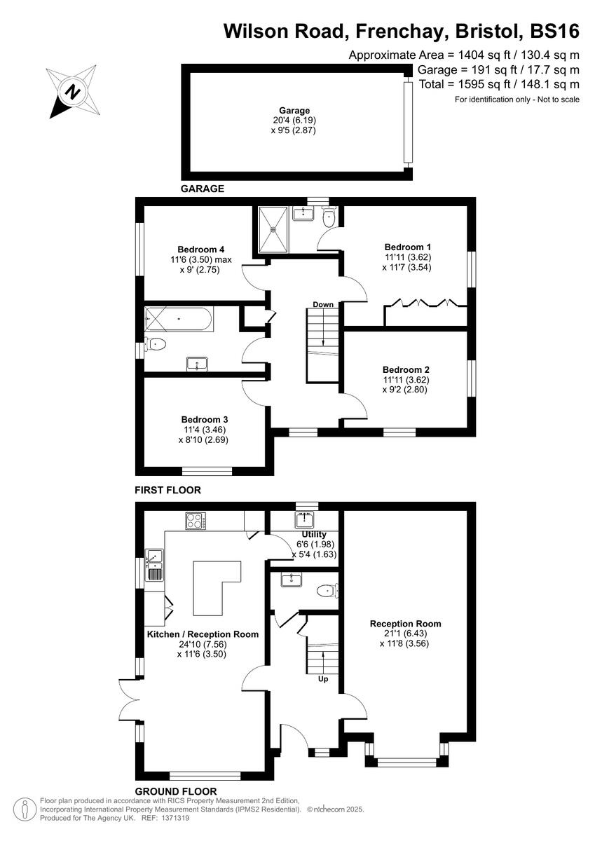
4 bed detached with ensuite and built-in wardrobes
Open-plan kitchen/diner/family room with island and integrated appliances
Air conditioning in lounge, kitchen, principal bedroom and office
Utility room, downstairs cloakroom and garage (used for storage)
Driveway parking for several cars; enclosed lawned garden with patio
Built 2021, newly renovated; EPC B, mains gas heating
Council tax in a higher band — running costs may be above average
Average local crime rate; very affluent area with fast broadband
Set on a popular Redrow development in Frenchay, this four-bedroom detached home offers roomy, move-in-ready living across well-planned accommodation. The upgraded open-plan kitchen/diner/family room with island, integrated appliances and French doors flows easily to a private lawned garden and patio — ideal for family meals and entertaining.
The principal bedroom includes built-in wardrobes and an en-suite; three further generous bedrooms suit children, guests or home offices. Practical spaces include a utility room, downstairs cloakroom and a garage (currently used for storage) with a driveway that fits several cars. The property benefits from air conditioning in the lounge, kitchen, principal bedroom and office for year-round comfort.
Recently constructed (2021) and newly renovated, the house has contemporary finishes, Karndean-style flooring, recessed lighting and a B EPC rating. Its setting in Frenchay gives a semi-rural feel with easy access to Bristol, good local schools and nearby green spaces. Note: council tax is in the higher band and the garage is currently arranged for storage rather than immediate living conversion.
4 bedroom semi-detached house for sale in Alexander Road, Frenchay, Bristol, BS16 — £550,000 • 4 bed • 2 bath
4 bedroom semi-detached house for sale in Alexander Road, Frenchay, Bristol, BS16 — £500,000 • 4 bed • 4 bath • 1209 ft²
3 bedroom semi-detached house for sale in Worrell Road, Frenchay, Bristol, BS16 — £450,000 • 3 bed • 2 bath • 960 ft²
4 bedroom semi-detached house for sale in Old Gloucester Road, Frenchay, BS16 — £580,000 • 4 bed • 2 bath • 1669 ft²
4 bedroom detached house for sale in The Newlands, Frenchay, BS16 — £775,000 • 4 bed • 1 bath • 1409 ft²
3 bedroom terraced house for sale in Mustoe Road, Frenchay, Bristol, BS16 — £375,000 • 3 bed • 2 bath • 851 ft²






























































































