Light-filled Jesus Green home with private garden and excellent transport links.
Freehold mid-terrace two-bedroom house, circa 965 sq ft
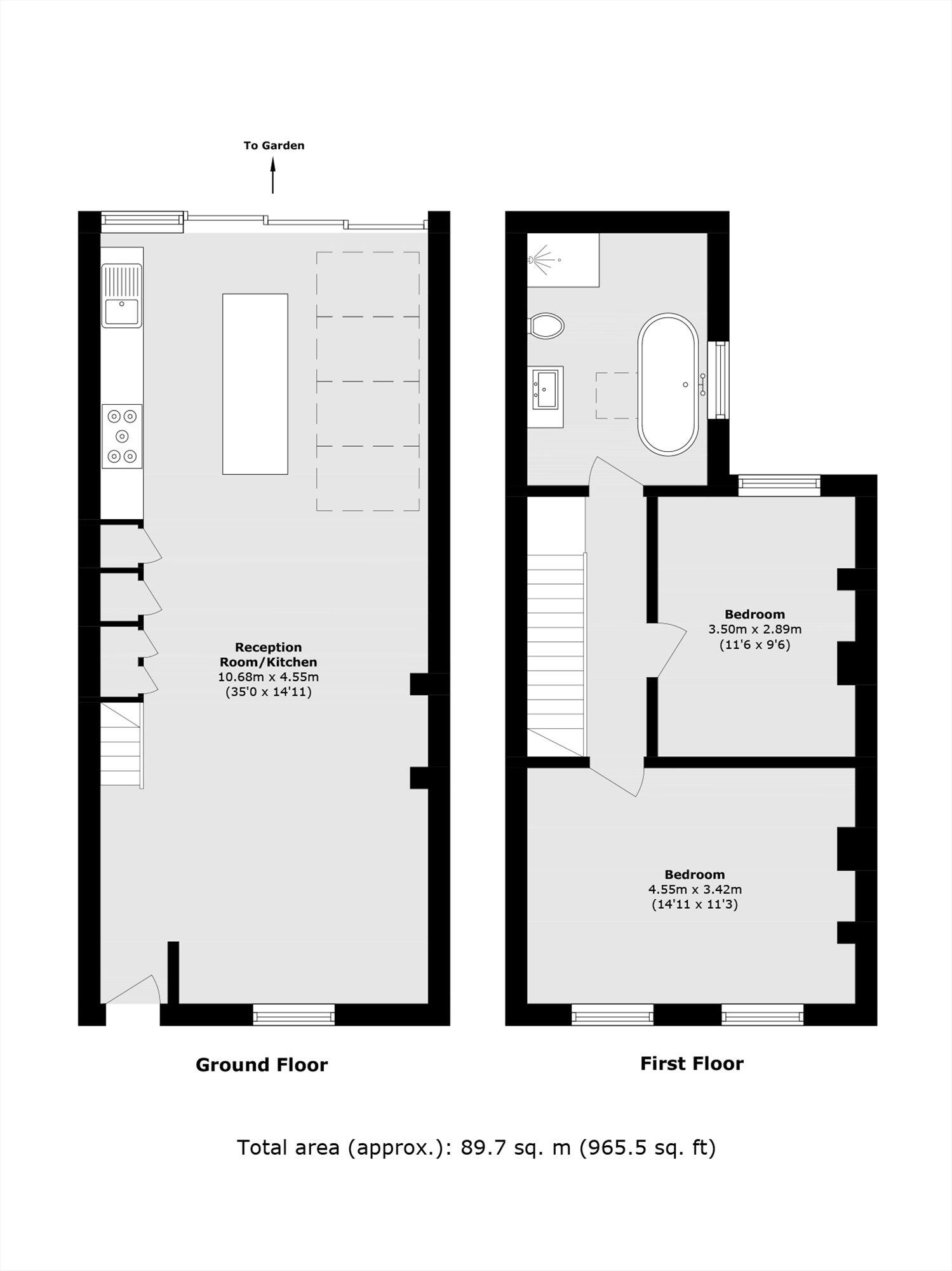
Light, character and contemporary living come together in this newly renovated two-bedroom Victorian terrace on Baxendale Street, Jesus Green. The open-plan ground floor benefits from large skylights and glazed doors that connect the modern kitchen/dining space to a private terrace, creating a bright, airy feel through the day. Exposed brickwork and wide plank flooring retain period charm while finishes are fresh and move-in ready.
At about 965 sq ft the layout suits a professional couple or first-time buyers seeking space for home working and good entertaining flow rather than large garden living. Both bedrooms are doubles and the bathroom includes separate bath and shower. The property is freehold and sits close to Columbia Road Flower Market, Broadway Market and several Overground and tube stations within half a mile — excellent for commuting and local amenities.
Practical points to note: the rear outside space is a small urban terrace rather than a large garden, and parking is on-street only. Council Tax is band E (above average). The area classification and broadband/mobile connectivity are strong, and there is no flood risk. Overall this is a compact, well-presented inner-London home that will appeal to buyers prioritising location, light and contemporary finishes over a larger plot.
2 bedroom house for sale in Baxendale Street, Jesus Green, E2 — £1,100,000 • 2 bed • 1 bath • 828 ft²
3 bedroom terraced house for sale in Elwin Street, Jesus (Green) Hospital Estate, Shoreditch E2 — £1,250,000 • 3 bed • 1 bath • 937 ft²
3 bedroom terraced house for sale in Wellington Row, Bow, E2 — £1,260,000 • 3 bed • 1 bath • 1011 ft²
3 bedroom house for sale in Baxendale Street, Columbia Road, London, E2 — £1,400,000 • 3 bed • 1 bath • 948 ft²
3 bedroom terraced house for sale in Quilter Street, London, E2 — £1,500,000 • 3 bed • 2 bath • 1200 ft²
3 bedroom terraced house for sale in Virginia Road, Tower Hamlets, London, E2 — £900,000 • 3 bed • 2 bath • 1071 ft²


































































