G76 0BF - 3 bed eaglesham detached home in East Renfrewshire, G76 0BF

View on Property Piper

3 bedroom detached house for sale in Picketlaw Road, Eaglesham, Glasgow, East Renfrewshire, G76

Summary - 40, PICKETLAW ROAD, GLASGOW, EAGLESHAM G76 0BF

3 bed 2 bath Detached

Contemporary three-bed detached on a corner plot in sought-after Eaglesham village.
Three-bedroom detached home with private landscaped garden
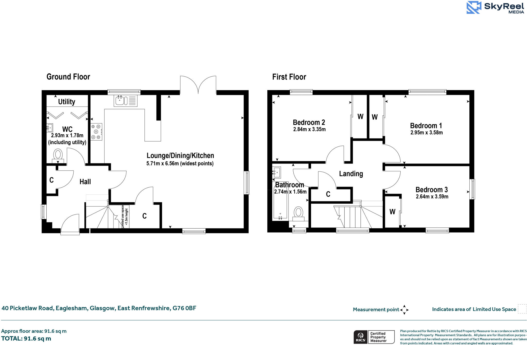
A well-presented three-bedroom detached home on a corner plot in Eaglesham, offering comfortable family living across two levels. The ground floor flows from a bright sitting/dining room into a modern open-plan kitchen, with direct access to a private, landscaped rear garden and terrace ideal for outdoor entertaining.

Upstairs the principal bedroom has fitted wardrobes and two further double bedrooms include built-in storage. The house benefits from gas central heating, double glazing and an EPC rating of B, making it efficient and straightforward to run. Driveway parking and additional front parking add practical convenience.

Set in the much-admired conservation village of Eaglesham, the location provides village amenities, popular primary schooling and good transport links to Glasgow and surrounding towns. Note the property is listed as Freehold and is circa 985 sq ft — average-sized accommodation suited to families seeking a semi-rural village life.

Material drawbacks to consider: the property is in a ward noted as very deprived, and council tax is in band F (described as expensive). Standard ceiling heights and multi-story layout may not suit buyers needing single-level living.

Property Details

Image Descriptions

Floorplan Description

Rooms

Textual Property Features

Target Audience

AI Tags

Detected Visual Features

Nearest Bars And Restaurants

,,,,}

Nearest General Shops

,,}

Nearest Grocery shops

,,}

Nearest Supermarkets

,,}

Nearest Religious buildings

,,}

Nearest Medical buildings

,,,}

Nearest Airports

,}

Nearest Leisure Facilities

,,,,}

Nearest Tourist attractions

,,}

Nearest Train stations

,,,,}

Nearest Bus stations and stops

,,,,}

Nearest Hotels

,,}

Tags

Local Market Stats

Similar Properties

Meta

High Res Images

Compatible Images

Low res Images

Thumbnails

Raw Images

High Res Floorplan Images

Compatible Floorplan Images

Low res Floorplan Images

FloorplanImages Thumbnail

Raw Floorplan Images