**Standout Features:**
- **Location:** Situated in the attractive community of Shaldon, Devon, within a quiet, self-sufficient retirement locale.
- **Property Type:** Grade II listed first-floor apartment in a Victorian period property.
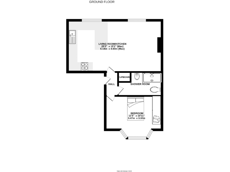
- **Space:** Compact design with a total of 428 square feet, including a spacious open-plan living area and a good-sized double bedroom.
- **Amenities:** Allocated off-street parking, garden space, and proximity to local amenities.
- **Potential:** While currently appealing, the property shows potential for renovation, particularly in the bedroom area with visible damp and mold concerns.
**Summary:**
This delightful one-bedroom apartment, nestled in a charming Grade II listed Victorian building, offers an inviting and character-filled home for singles or couples. The open-plan living space is bright and airy, showcasing the apartment's charm, while the good-sized bedroom features built-in wardrobes for efficient storage. A shower room adds functionality, albeit the opportunity for renovation is present, especially in regard to damp and mold in the bedroom area.
With off-street parking and a small garden to enjoy, this property delivers comfort and convenience in the picturesque village of Shaldon. Enjoy low crime rates, a friendly community atmosphere, and access to local amenities, including shops, cafes, and schools ranked within the top 10%. This apartment is a chain-free opportunity for those looking for a serene living space or a potential investment in a sought-after area—don't miss your chance to make it your own!
1 bedroom apartment for sale in Ringmore Road, Shaldon, Devon, TQ14 — £197,500 • 1 bed • 1 bath • 592 ft²
2 bedroom apartment for sale in The Green, Shaldon, Devon, TQ14 — £387,500 • 2 bed • 1 bath • 721 ft²
1 bedroom apartment for sale in Ferrymans Reach, Marine Parade, Shaldon, Devon, TQ14 — £165,000 • 1 bed • 1 bath • 351 ft²
2 bedroom apartment for sale in Topcliff Road, Shaldon, TQ14 — £220,000 • 2 bed • 1 bath • 448 ft²
6 bedroom terraced house for sale in Fore Street, Shaldon, Devon, TQ14 — £997,500 • 6 bed • 3 bath • 2824 ft²
1 bedroom apartment for sale in Strand, Shaldon, Devon, TQ14 — £295,000 • 1 bed • 1 bath • 1136 ft²






















































