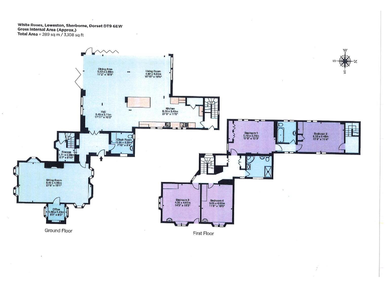
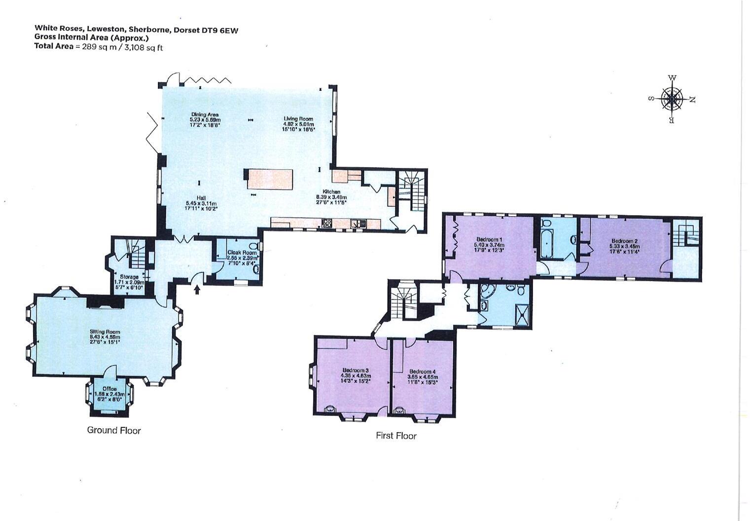
Secluded 4-bed country house with large garden, stunning westward views and barn conversion potential..
- Over 3,100 sq ft of mixed period and contemporary accommodation
- Elevated, west-facing uninterrupted countryside views
- Circa 1.36 acres of landscaped gardens and private drive
- Contemporary single-storey extension creates large open-plan living space
- 2024 external render with 110–120mm insulation added
- Oil-fired central heating; ongoing fuel/maintenance costs possible
- Private drainage system in use (not mains sewer)
- Barn with conversion potential subject to necessary consents
A substantial period house with a striking contemporary extension, White Roses offers more than 3,100 sq ft of flexible living on about 1.36 acres. Occupying an elevated, secluded position on the edge of Leweston School grounds, the property benefits from expansive west-facing countryside views and mature screening for privacy. The single-storey modern wing creates a large open-plan kitchen/dining/living heart, while original 1810 fabric and generous reception rooms retain character and space for family life.
Practical improvements include a 2024 external nano-silicone render with 110–120mm insulation added, oil-fired central heating with boiler and radiators, and double glazing (installed before 2002). Services include mains water and electricity, private drainage, ultrafast broadband and excellent mobile signal. A detached barn on the plot offers potential for conversion subject to the necessary consents.
Considerations: heating is oil-fuelled and the property uses private drainage, which may be a factor for running costs and maintenance. The barn conversion requires planning permission; parts of the house will suit further updating to match the contemporary extension. Access is via Leweston School drive, with an agreed right of access through the school grounds and shared community facilities available to residents.
This house will suit a family or buyers seeking a roomy country home with strong privacy, excellent outlooks and scope to adapt the barn and interior to personal tastes. Its rural yet well-connected location places Sherborne’s amenities and schools within easy reach while retaining a genuinely secluded setting.
4 bedroom detached house for sale in Boys Hill, Sherborne, DT9 — £750,000 • 4 bed • 2 bath • 2747 ft²
Land for sale in White House Farm Buildings & Land, Buckland Newton, Dorchester, DT2 — £1,725,000 • 1 bed • 1 bath • 1289 ft²
4 bedroom detached house for sale in Glanvilles Wootton, Sherborne, DT9 — £850,000 • 4 bed • 3 bath • 4121 ft²
4 bedroom detached house for sale in Longburton, DT9 — £499,950 • 4 bed • 2 bath • 2371 ft²
6 bedroom farm house for sale in Bishops Down, Sherborne, Dorset, DT9 — £1,500,000 • 6 bed • 5 bath • 2634 ft²
5 bedroom farm house for sale in White House Farmhouse & Land, Buckland Newton, Dorchester, DT2 — £675,000 • 5 bed • 1 bath • 3582 ft²






















































