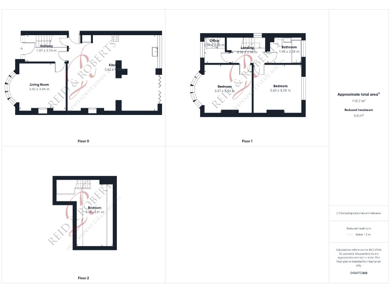
Three bedrooms, garage and sunny garden close to Wrexham with flexible loft space.
- Detached 1930s Tudor Revival with bay windows and original character features
- Large open-plan kitchen/dining/sitting room ideal for family living
- Two full double bedrooms plus converted attic space with Velux windows
- Loft conversion lacks building regulation approval and cannot be classed as a bedroom
- Single family bathroom only; might not suit larger households
- Tarmac driveway, single garage (small car) and enclosed low-maintenance garden
- EPC rated D — potential for energy efficiency improvements
- Located near amenities and A483; area has higher crime and deprivation
This extended 1930s detached house sits on a decent plot in Bryn Glas, Rhosllanerchrugog, offering a spacious open-plan kitchen/dining/sitting area ideal for family life and entertaining. Two double bedrooms on the first floor are complemented by a converted attic with roof windows and modern finishes that provides versatile extra space, currently used as a double bedroom but without building regulation approval.
Practical benefits include a tarmac driveway, single garage (suitable for a small car), low‑maintenance enclosed rear garden with sunny patios, and gas central heating with radiators. The house retains period character — bay windows and fireplaces — alongside contemporary touches such as wood burners in both reception areas and a fitted kitchen with a five‑ring hob.
Important facts and considerations: the loft conversion does not have building regulation certification and therefore cannot be classed as an authorised bedroom, there is a single family bathroom only, and the EPC is band D so energy improvements could reduce running costs. The property is in an area with higher local crime and notable deprivation, which buyers should factor into decisions.
Positioned about three miles from Wrexham city centre with easy access to the A483, the location gives practical commuting routes, local shops, schools, a health centre and a community theatre close by. The house will suit a family seeking period character, practical living space and further improvement potential.
3 bedroom detached house for sale in Osborne Street, Rhosllanerchrugog, LL14 — £200,000 • 3 bed • 1 bath • 1152 ft²
3 bedroom semi-detached house for sale in Chester Road, Wrexham, LL11 — £245,000 • 3 bed • 1 bath • 1199 ft²
3 bedroom semi-detached house for sale in Duke Street, Rhosllanerchrugog, Wrexham, LL14 — £150,000 • 3 bed • 1 bath • 1002 ft²
3 bedroom house for sale in Spring Road, Wrexham, LL11 — £160,000 • 3 bed • 1 bath • 967 ft²
3 bedroom semi-detached house for sale in Wrexham Road, Rhostyllen, Wrexham, LL14 — £295,000 • 3 bed • 1 bath • 1099 ft²
3 bedroom semi-detached house for sale in Smith Street, Rhosllanerchrugog, Wrexham, LL14 — £165,000 • 3 bed • 1 bath • 926 ft²






































































































