GU15 3TA - 2 bedroom semidetached house for sale in Portesbery Road, C…

View on Property Piper

2 bedroom semi-detached house for sale in Portesbery Road, Camberley, Surrey, GU15

Summary - 12 PORTESBERY ROAD CAMBERLEY GU15 3TA

2 bed 2 bath Semi-Detached

**Standout Features:**
- Two spacious double bedrooms
- Modern four-piece bathroom
- Open-plan kitchen/diner with snug & orangery
- Landscaped rear garden, ideal for outdoor enjoyment
- Convenient town centre location with off-road parking
- Freehold tenure for long-term investment security
- Low crime area, perfect for families and professionals

**Summary:**
Discover this beautifully presented semi-detached Victorian property in the heart of Camberley, boasting a generous 1,264 sq ft of living space. The home features two large double bedrooms, a stylish four-piece bathroom, and an open-plan kitchen/diner with a charming snug and an impressive orangery, flooding the space with natural light. The landscaped rear garden offers a tranquil retreat for relaxation or entertaining.

Its prime town centre location ensures you have excellent amenities at your doorstep, from shops to schools, making it ideal for families and professionals alike. Enjoy peace of mind with off-road parking and a low-crime neighborhood. This property is perfect for those looking to invest in a characterful home that balances charm with contemporary living. Don’t miss out on this opportunity—properties like this in such a desirable area are rarely available for long!

Property Details

Brochure Descriptions

Image Descriptions

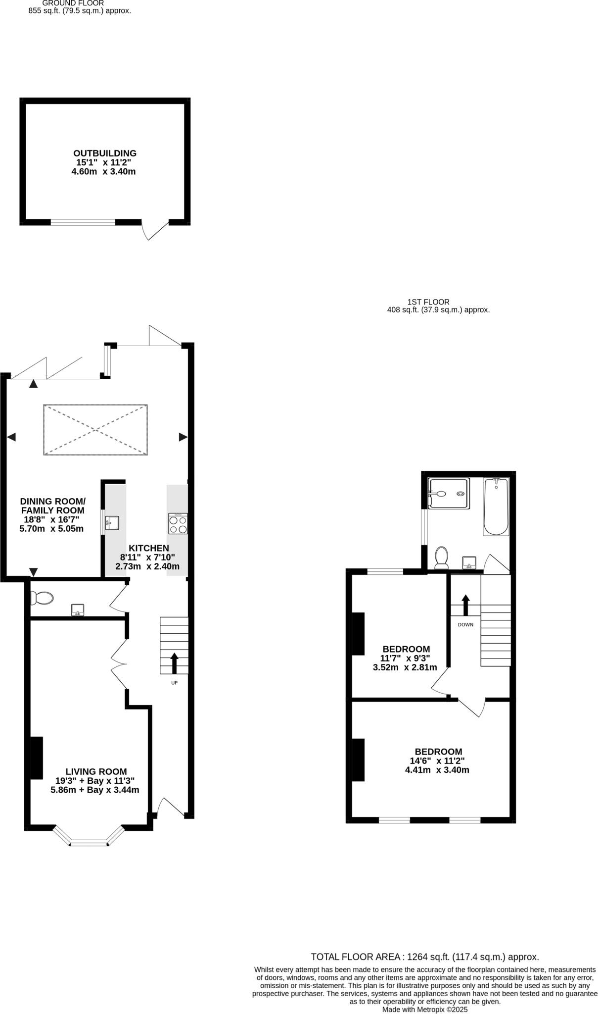
Floorplan Description

Rooms

Textual Property Features

Detected Visual Features

EPC Details

Nearby Schools

Nearest Bars And Restaurants

,,,,}

Nearest General Shops

,,}

Nearest Grocery shops

,,}

Nearest Supermarkets

,,}

Nearest Religious buildings

,,}

Nearest Medical buildings

,,,}

Nearest Airports

}

Nearest Leisure Facilities

,,,,}

Nearest Tourist attractions

,,}

Nearest Train stations

,,,,}

Nearest Bus stations and stops

,,,,}

Nearest Hotels

,,}

Tags

Local Market Stats

AirBnB Data

Similar Properties

Meta

High Res Images

Compatible Images

Low res Images

Thumbnails

Raw Images

High Res Floorplan Images

Compatible Floorplan Images

Low res Floorplan Images

FloorplanImages Thumbnail

Raw Floorplan Images