M46 0NU - 2 bedroom apartment for sale in Gadfield Grove, Atherton, M…

View on Property Piper

2 bedroom apartment for sale in Gadfield Grove, Atherton, M46

Summary - Apartment 6, 83, Gadfield Grove, Atherton M46 0NU

2 bed 1 bath Apartment

Well-presented two-bedroom starter apartment with parking and fitted kitchen.
Allocated off-street parking plus visitor spaces
A well-presented two-bedroom second-floor apartment in the popular Gadbury Fold development, arranged with a larger-than-average living/dining space for this size. The bright living room and fitted kitchen with integrated appliances make it ready to move into for a first home or buy-to-let.

Practical features include an allocated parking space plus visitor bays, master bedroom with fitted wardrobes and secure communal entry with intercom. The property sits within a modern red-brick block built in the mid-2000s and benefits from double glazing and good local amenities, including nearby shops, bus links and several well-rated primary and secondary schools.

Important practical points: the apartment is leasehold (around 104 years remaining) with an average service charge of £1,092 and a small ground rent of £125. Heating is by electric room heaters rather than gas central heating, and there is no private garden—outdoor space is limited to communal landscaped areas.

Overall this compact 596 sq ft apartment suits first-time buyers seeking a low-maintenance starter home or investors looking for straightforward lettable accommodation. Viewings are recommended to appreciate the interior space and practical parking provision.

Property Details

Brochure Descriptions

Image Descriptions

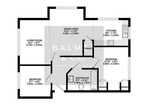
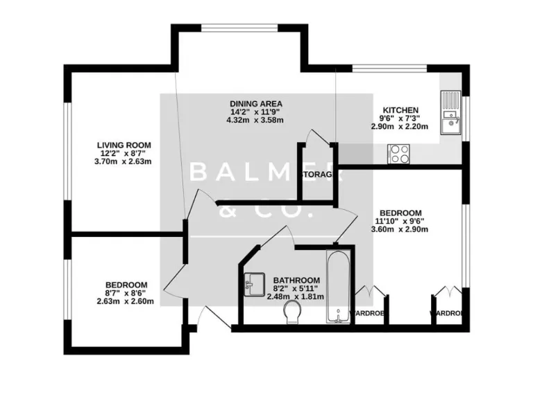
Floorplan Description

Rooms

Textual Property Features

Target Audience

AI Tags

Detected Visual Features

EPC Details

Nearby Schools

Nearest Bars And Restaurants

,,,,}

Nearest General Shops

,,}

Nearest Grocery shops

,,}

Nearest Supermarkets

,,}

Nearest Religious buildings

,,}

Nearest Medical buildings

,,,}

Nearest Airports

,}

Nearest Leisure Facilities

,,,,}

Nearest Tourist attractions

,,}

Nearest Train stations

,,,,}

Nearest Bus stations and stops

,,,,}

Nearest Hotels

,,}

Tags

Local Market Stats

Similar Properties

Meta

High Res Images

Compatible Images

Low res Images

Thumbnails

Raw Images

High Res Floorplan Images

Compatible Floorplan Images

Low res Floorplan Images

FloorplanImages Thumbnail

Raw Floorplan Images