Spacious plot with strong extension potential and convenient transport links.
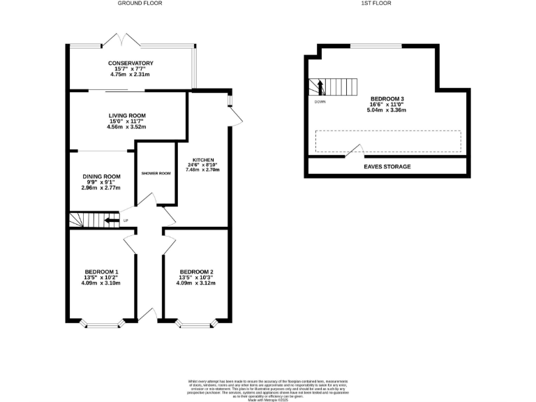
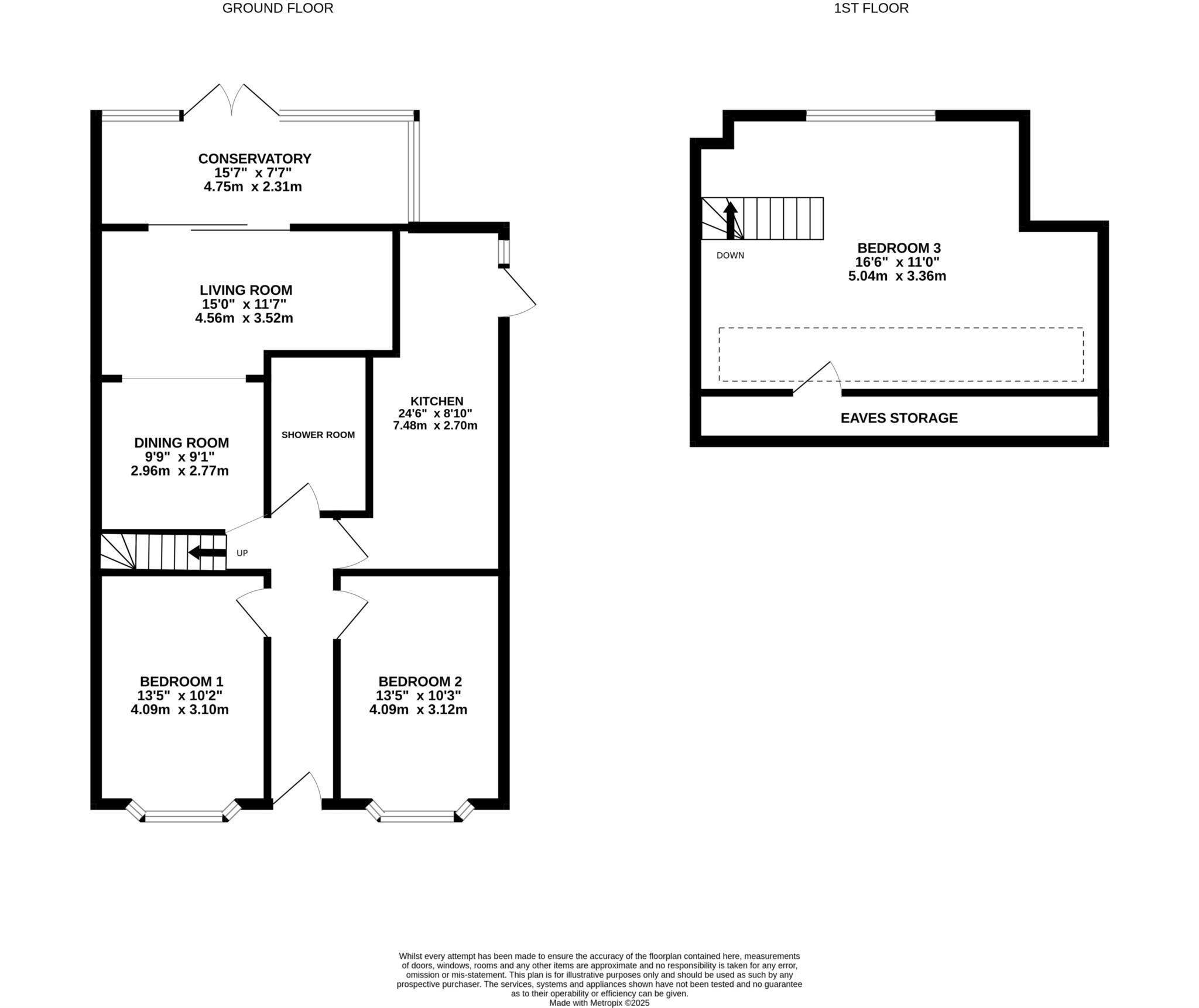
- Extended 3-bedroom bungalow with loft-converted third bedroom
- Open-plan lounge/diner flows into conservatory, bright living space
- Large private rear garden with extension potential (STPP)
- Paved driveway with shared access providing off-street parking
- Modern fitted galley kitchen and single shower room only
- Double glazing and gas central heating throughout
- Built 1930s–40s on solid brick walls; likely no cavity insulation
- Chain free; average overall size, moderate council tax
This extended three-bedroom semi-detached bungalow on Penrose Avenue offers practical, flexible living across a single-storey footprint with an added loft bedroom. The home is chain-free and ready for immediate occupation, benefitting from double glazing, gas central heating, and a modern galley kitchen. The open-plan lounge/dining room flows into a conservatory, creating bright, sociable space ideal for family life or downsizers wanting ground-floor convenience.
Outside, a generous rear garden and wide paved driveway (shared access) are major strengths: the garden provides privacy and scope for landscaping or further extension subject to planning permission (STPP). The plot size and lack of upper chain make this property appealing to buyers looking to extend, refurbish, or reconfigure the layout to add value.
Practical points to note: the property dates from the 1930s–40s and has solid brick walls assumed without cavity insulation, so buyers should consider potential energy-efficiency upgrades. The current accommodation includes a single shower room and a loft conversion with eaves storage that provides the third bedroom but may have restricted headroom in parts. Council tax is moderate and there is very low local crime, fast broadband and excellent mobile signal.
Location is convenient: Carpenders Park station, well-regarded primary schools and local shops are within walking distance, making daily travel and family routines straightforward. For buyers wanting an adaptable, character-filled bungalow with sizeable outdoor space and good transport links, this house presents clear potential, although some modernisation and insulation improvements should be expected.
3 bedroom semi-detached bungalow for sale in Carpenders Avenue, Watford, Hertfordshire, WD19 — £575,000 • 3 bed • 2 bath • 893 ft²
3 bedroom semi-detached bungalow for sale in Compton Place, Carpenders Park, WD19 — £500,000 • 3 bed • 1 bath • 850 ft²
3 bedroom bungalow for sale in Greenfield Avenue, Watford, Hertfordshire, WD19 — £595,000 • 3 bed • 1 bath • 672 ft²
3 bedroom semi-detached house for sale in St Georges Drive, Carpenders Park, WD19 — £575,000 • 3 bed • 3 bath • 818 ft²
2 bedroom detached bungalow for sale in Penrose Avenue, Carpenders Park, WD19 — £595,000 • 2 bed • 1 bath • 829 ft²
3 bedroom semi-detached bungalow for sale in Compton Place, Watford, Hertfordshire, WD19 — £600,000 • 3 bed • 2 bath • 956 ft²






























































