Town-centre one-bed retirement flat with long lease and communal gardens.
Private ground-floor entrance, easy access
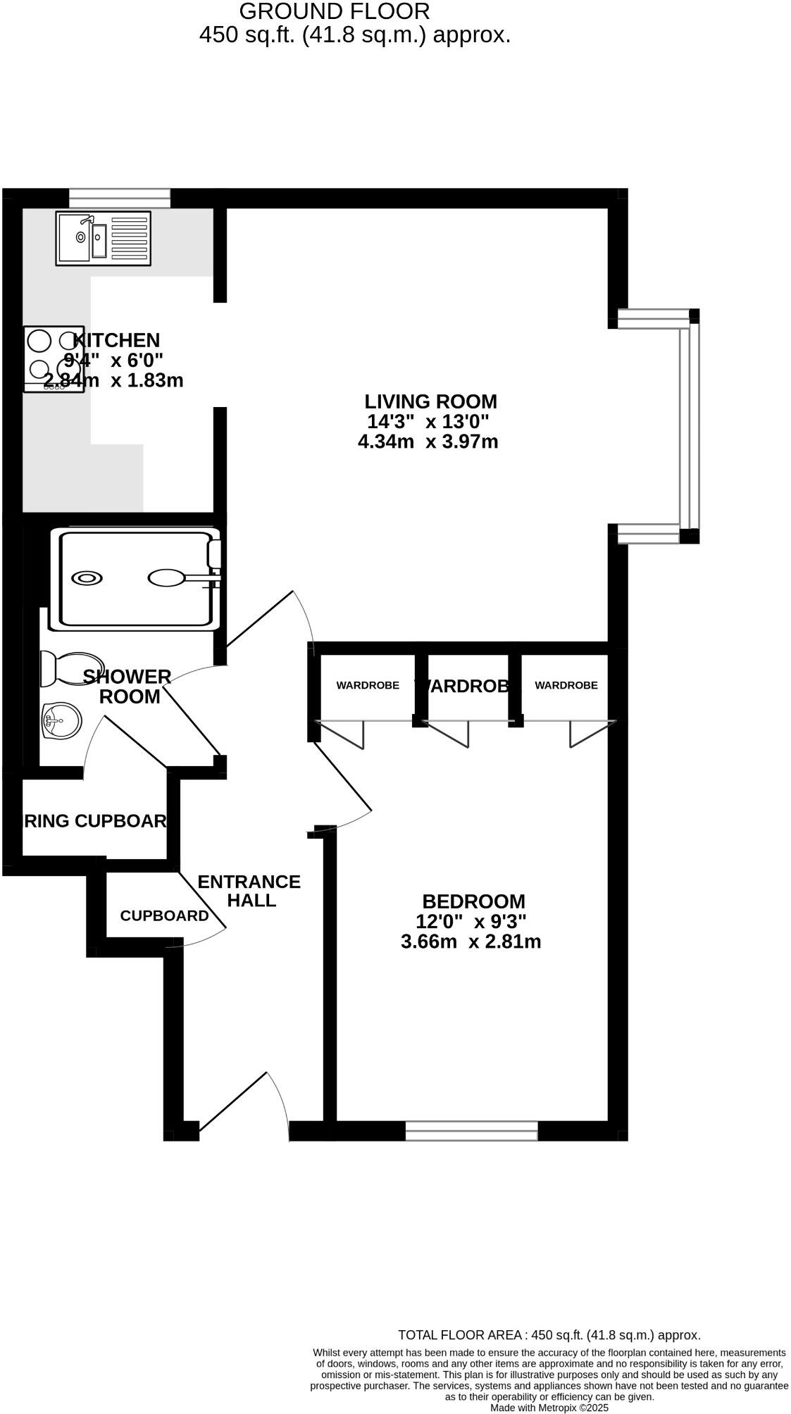
This ground-floor one-bedroom retirement apartment sits just off Fareham High Street, offering easy town-centre living with its own private front door. The apartment has a comfortable lounge with bay window, a fitted kitchen, and a re-fitted shower room — a manageable layout well suited to downsizers or someone seeking a low-maintenance base.
Practical benefits include well-kept communal gardens with seating, non-allocated residents' parking, an exceptionally long lease (965 years remaining) and no forward chain, so a quick move is possible once probate is completed. Council tax is modest (Band C) and the flat is compact at about 450 sq ft — easier to maintain than a house.
Be aware of material drawbacks: heating is via electric storage heaters and the main fuel is electricity, which can be costly compared with gas; the EPC rating is D. The development charges a service/maintenance fee (£1,309.96 for 2025) plus a small ground rent (£75). Parking is non-allocated on-street rather than a dedicated bay, and the property is being sold subject to probate.
The local area offers excellent convenience — shops, banks, medical services and public transport are all close by — but broader indicators show higher local crime levels and general area deprivation. For a buyer prioritising central location, ease of access and long lease security, this apartment presents good value; buyers seeking lower running costs or quieter surroundings should note the heating and local-area issues.
 1 bedroom retirement property for sale in Moresby Court, Fareham, PO16 — £100,000 • 1 bed • 1 bath • 489 ft²
 1 bedroom retirement property for sale in Moresby Court, Fareham, PO16 — £100,000 • 1 bed • 1 bath • 489 ft² 1 bedroom retirement property for sale in Croad Court, Fareham, PO16 — £150,000 • 1 bed • 1 bath • 459 ft²
 1 bedroom retirement property for sale in Croad Court, Fareham, PO16 — £150,000 • 1 bed • 1 bath • 459 ft² 1 bedroom retirement property for sale in Moresby Court, Fareham, PO16 — £79,950 • 1 bed • 1 bath • 467 ft²
 1 bedroom retirement property for sale in Moresby Court, Fareham, PO16 — £79,950 • 1 bed • 1 bath • 467 ft² 1 bedroom retirement property for sale in High Street, Fareham, Hampshire, PO16 — £135,000 • 1 bed • 1 bath • 447 ft²
 1 bedroom retirement property for sale in High Street, Fareham, Hampshire, PO16 — £135,000 • 1 bed • 1 bath • 447 ft² 1 bedroom retirement property for sale in Moresby Court, Westbury Road, Fareham, PO16 — £140,000 • 1 bed • 1 bath • 459 ft²
 1 bedroom retirement property for sale in Moresby Court, Westbury Road, Fareham, PO16 — £140,000 • 1 bed • 1 bath • 459 ft² 1 bedroom retirement property for sale in Moresby Court, Fareham, PO16 — £133,000 • 1 bed • 1 bath • 502 ft²
 1 bedroom retirement property for sale in Moresby Court, Fareham, PO16 — £133,000 • 1 bed • 1 bath • 502 ft²










































