**Standout Features:**
- Bespoke architecturally designed detached house by Jonathan Smith (completed in 1999)
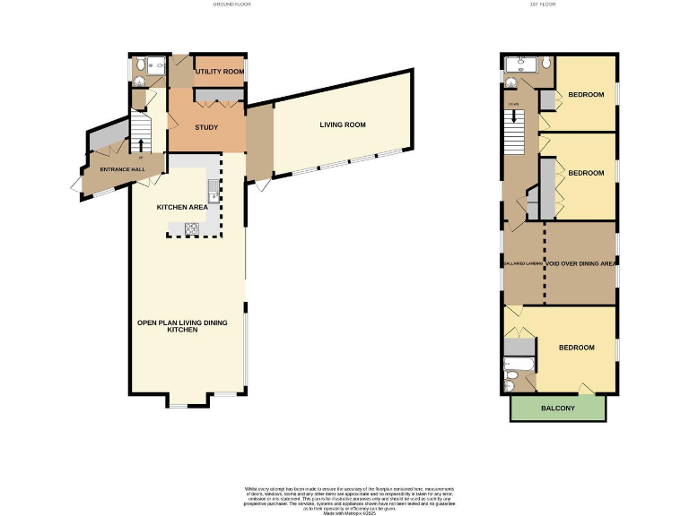
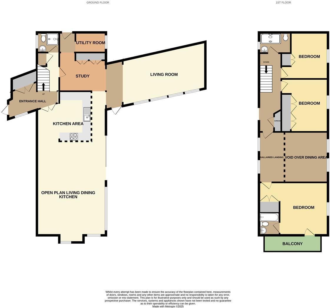
- 3 spacious double bedrooms, each with en-suite or access to a bathroom
- Eco-friendly with heat pump, PV solar panels, and battery storage
- Fabulous open-plan living area with abundant natural light
- Tucked away location near Beverley Grammar and Minster Primary School
- Off-road parking with remote-controlled gates; garage suitable for medium-sized motorhome
- No onward chain; EPC Rating: B; Council Tax Band: F
**Summary:**
Discover this unique and captivating 3-bedroom detached house located in a peaceful cul-de-sac in Beverley. Designed by esteemed architect Jonathan Smith, this eco-friendly gem features an impressive open-plan living space that floods with natural light through its expansive glass windows. Perfect for families or professionals, the home encompasses three generously sized double bedrooms, each equipped with their own en-suite or close access to a modern bathroom.
Its contemporary design melds comfort with sophistication, catering perfectly to those who enjoy a serene lifestyle without sacrificing convenience. With the added benefits of eco-conscious amenities like solar panels and a heat pump, this home not only ensures energy efficiency but also promotes sustainability.
Located within a stone's throw of highly-rated schools, this property presents a fantastic opportunity for family living. The expansive garden offers a tranquil outdoor retreat, while the ample parking, including a garage suitable for a medium-sized motorhome, enhances its practicality. Don’t miss your chance to make this architecturally stunning home yours; properties of this caliber are in high demand and won't last long!
3 bedroom detached house for sale in Longcroft Park, Beverley, HU17 — £785,000 • 3 bed • 2 bath • 1475 ft²
6 bedroom house for sale in Westwood Road, Beverley, HU17 — £925,000 • 6 bed • 3 bath • 3157 ft²
3 bedroom semi-detached house for sale in Beaumont Drive, Beverley, HU17 — £310,000 • 3 bed • 2 bath • 969 ft²
4 bedroom detached house for sale in Cartwright Lane, Beverley, HU17 — £467,500 • 4 bed • 2 bath • 1155 ft²
5 bedroom detached house for sale in Dinsdale Grove, Coppleflat Lane, Walkington, HU17 — £750,000 • 5 bed • 4 bath • 2282 ft²
4 bedroom detached bungalow for sale in The Hedges, Church Green, Beverley, HU17 7EU, HU17 — £995,000 • 4 bed • 3 bath • 3265 ft²






































































