Auction project with refurbishment upside near schools and transport links.
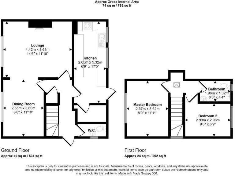
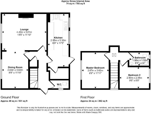
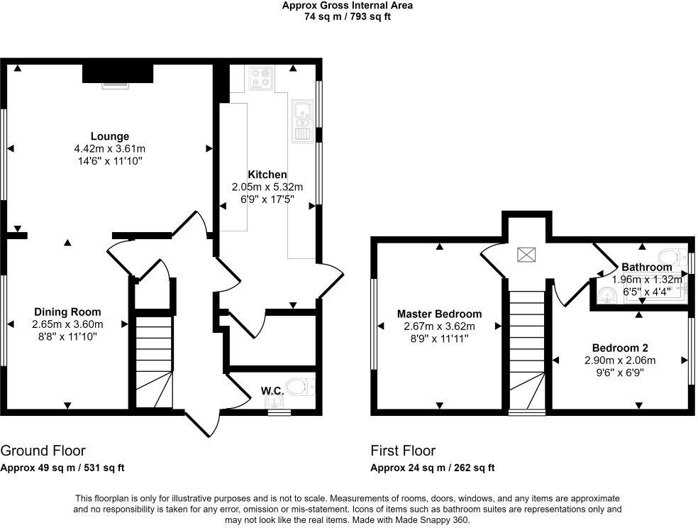
- Two bedrooms, one reception, one bathroom, circa 793 sq ft
- Freehold tenure with very low council tax
- Sold at online auction; unconditional lot, 10% deposit required
- Buyers’ administration fee £1,200 + VAT plus other possible fees
- Kitchen derelict, damp present and low ceilings; needs full refurbishment
- Overgrown garden and external maintenance required
- Area classed as very deprived; local demand may be pressured
- Fast broadband and excellent mobile signal; no flood risk
A two-bedroom, freehold semi-detached house offered at auction on 10 December 2025 — geared to investors or cash buyers seeking a value purchase. The property is an average-sized home (approximately 793 sq ft) with one reception room, kitchen, bathroom and a rear garden. It sits in a major conurbation with fast broadband and excellent mobile signal.
The house requires significant cosmetic and structural attention: the kitchen is derelict with damp and low ceilings, and the exterior garden is overgrown. Buyers should budget for full modernisation and possible damp remediation. Local area indicators show high deprivation and a hampered neighbourhood profile, which will influence rental demand and long-term capital growth.
Practical positives include freehold tenure, very low council tax, no flood risk and nearby primary and secondary schools rated Good. The lot is unconditional at auction — a 10% deposit (minimum £5,000) plus a buyers’ administration fee (£1,200 + VAT) will be payable on the fall of the hammer, with completion usually required within 28 days. Review the legal pack carefully for further costs before bidding.
For investors this property offers refurbishment potential and immediate lettable space once works are complete. For buyers seeking a project, the house presents clear scope to add value but will need upfront capital, time and a realistic plan for repairs.
3 bedroom semi-detached house for sale in 43 Awbridge Road, Netherton, Dudley, DY2 0HZ, DY2 — £140,000 • 3 bed • 1 bath
2 bedroom town house for sale in 32 Victoria Gardens, Cradley Heath, West Midlands B64 5LX, B64 — £105,000 • 2 bed • 1 bath • 901 ft²
2 bedroom terraced house for sale in Grainger Street, Dudley, DY2 — £130,000 • 2 bed • 1 bath • 572 ft²
2 bedroom semi-detached house for sale in 3,
Corbyns Hall Road, Brierley Hill, DY5 — £39,000 • 2 bed • 1 bath • 830 ft²
3 bedroom terraced house for sale in Pine Green, Dudley, DY1 — £139,000 • 3 bed • 1 bath • 958 ft²
2 bedroom terraced house for sale in 3 Lloyd Street, Dudley, DY2 8NG, DY2 — £85,000 • 2 bed • 1 bath • 991 ft²


















































