Easy-care two-bedroom park home with balcony and private garden in picturesque Welford-on-Avon.
Exclusive over-50s park home, pet friendly
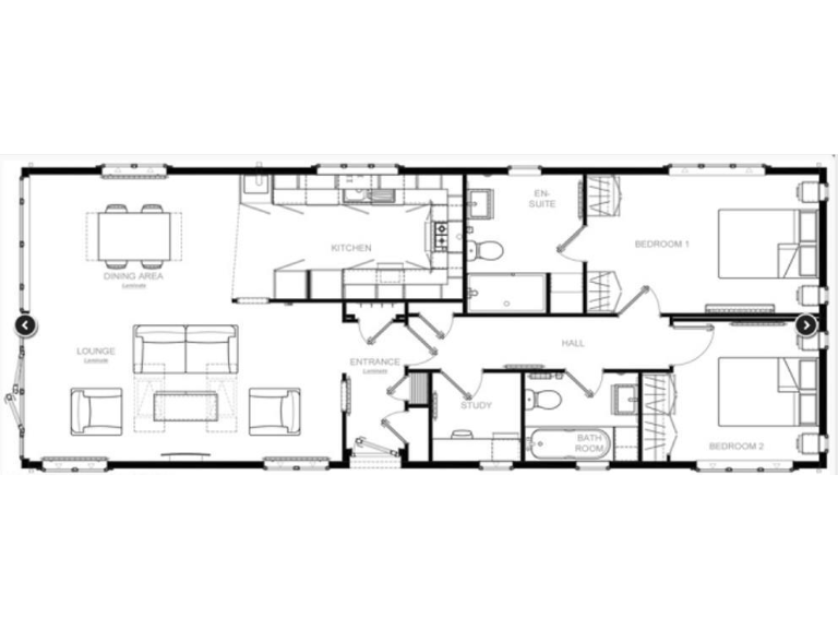
Set within an exclusive over-50s development in picturesque Welford-on-Avon, this well-presented park home offers a bright, modern open-plan living space and two double bedrooms across c.950 sq ft. The principal bedroom has an en-suite, there's a dedicated home office and a balcony overlooking a private, low-maintenance garden — an easy-care home for those wanting comfort and village life.
Practicalities suit downsizers: off-road parking, wrap-around garden, fast broadband and a compact, efficient layout make daily living straightforward. The site is pet friendly and the residence benefits from high ceilings and plentiful natural light from skylights and large windows.
Buyers should note material facts: the unit purchase does not necessarily include the land in perpetuity — the home sits on a park lease with a reducing term and there are site fees of £244.26pcm (at time of listing). Services include metered LPG from a communal tank, so check fuel arrangements. There is a medium flood risk for the area; prospective purchasers should satisfy themselves on insurance and flood protection.
This property will appeal to those seeking a secure, low-maintenance retirement base close to Stratford-upon-Avon, with good local amenities and transport links. Video tour available to view the layout before visiting in person.
 2 bedroom park home for sale in Welford Chase, Welford On Avon, CV37 — £250,000 • 2 bed • 2 bath • 981 ft²
 2 bedroom park home for sale in Welford Chase, Welford On Avon, CV37 — £250,000 • 2 bed • 2 bath • 981 ft² 2 bedroom park home for sale in Welford Chase, Welford On Avon, Stratford-Upon-Avon, CV37 — £295,000 • 2 bed • 2 bath • 993 ft²
 2 bedroom park home for sale in Welford Chase, Welford On Avon, Stratford-Upon-Avon, CV37 — £295,000 • 2 bed • 2 bath • 993 ft² 2 bedroom park home for sale in Hunt Hall Lane, Welford On Avon, STRATFORD-UPON-AVON, CV37 — £150,000 • 2 bed • 1 bath • 561 ft²
 2 bedroom park home for sale in Hunt Hall Lane, Welford On Avon, STRATFORD-UPON-AVON, CV37 — £150,000 • 2 bed • 1 bath • 561 ft² 3 bedroom park home for sale in Stratford-upon-Avon, Warwickshire, CV37 — £375,000 • 3 bed • 2 bath • 1430 ft²
 3 bedroom park home for sale in Stratford-upon-Avon, Warwickshire, CV37 — £375,000 • 3 bed • 2 bath • 1430 ft² 2 bedroom park home for sale in Stratford-upon-Avon, Warwickshire, CV37 — £140,000 • 2 bed • 1 bath • 520 ft²
 2 bedroom park home for sale in Stratford-upon-Avon, Warwickshire, CV37 — £140,000 • 2 bed • 1 bath • 520 ft² 2 bedroom park home for sale in Hunt Hall Lane, Welford-on-Avon, CV37 — £185,000 • 2 bed • 2 bath • 689 ft²
 2 bedroom park home for sale in Hunt Hall Lane, Welford-on-Avon, CV37 — £185,000 • 2 bed • 2 bath • 689 ft²


























































