Four-bedroom detached home with large plot, garages, and seaside access..
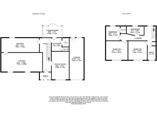
Four double bedrooms across two storeys, good family layout
Conservatory with French doors opening onto large rear garden
Separate double garage/workshop plus adjoining single garage and driveway
Oil-fired central heating; EPC rating E — consider energy upgrades
Single family bathroom; one downstairs WC only
Built 1930s–40s; likely original cavity walls no added insulation
Large plot with raised deck and enclosed lawns, private outdoor space
Area classified as ageing rural neighbourhood; local services limited
Cranleigh House is a spacious four-bedroom detached family home on a large plot in Hemsby, a short drive from the beach and local amenities. The layout includes two reception rooms, a conservatory with French doors to the garden, and a practical kitchen with adjoining utility — good for family life and entertaining.
The property retains period touches such as a timber fireplace surround with cast-iron inset, paired with more modern fitted kitchen and living spaces. Outside there is generous driveway parking, an adjoining garage and a separate double garage/workshop — useful for vehicles, hobbies or extra storage.
Practical considerations are clear: heating is oil-fired with a boiler and radiators, the EPC is rated E and the house dates from the 1930s–40s with likely original cavity walls (no added insulation assumed). There is a single family bathroom upstairs. Buyers should factor in running costs, potential energy-efficiency upgrades and some cosmetic updating to maximise long-term value.
This home will suit families needing space, buyers wanting seaside access, or those seeking a property with workshop space and garden. It offers solid bones and scope for improvement rather than a move-in-perfect, low-maintenance lock-up-and-leave option.
4 bedroom detached house for sale in Yarmouth Road, Hemsby, NR29 — £400,000 • 4 bed • 1 bath • 1098 ft²
4 bedroom detached house for sale in Yarmouth Road, Hemsby, NR29 — £585,000 • 4 bed • 2 bath • 2734 ft²
5 bedroom semi-detached house for sale in Medeswell, Hemsby, NR29 — £280,000 • 5 bed • 1 bath • 1138 ft²
3 bedroom detached bungalow for sale in Yarmouth Road, Hemsby, NR29 — £320,000 • 3 bed • 2 bath • 915 ft²
4 bedroom detached house for sale in Yarmouth Road, Hemsby, Great Yarmouth, NR29 — £585,000 • 4 bed • 2 bath • 2735 ft²
4 bedroom chalet for sale in Bridle Close, Hemsby, NR29 — £450,000 • 4 bed • 3 bath • 1421 ft²


























































































