Move-in-ready two-bed flat with a decked yard and strong transport links — ideal starter or investor buy.
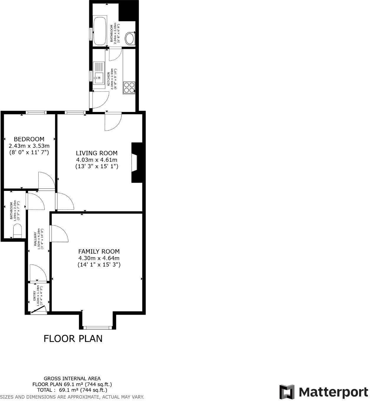
Two-bedroom ground-floor flat with neutral, move-in-ready décor
Bay-fronted main bedroom with built-in wardrobes
Second bedroom suitable for single bed or home office
Generously sized living room with alcoves and character mantel
Functional kitchen with shaker-style units and granite-effect worktops
Private fully decked rear yard with back lane access
On-street parking; excellent mobile signal and fast broadband
Area classed as deprived; average crime and single bathroom only
This two-bedroom ground-floor flat on Marlborough Street South offers a straightforward, move-in-ready option for first-time buyers or buy-to-let investors. Neutral décor throughout and a generously sized living room make the property immediately comfortable, while practical features — fitted wardrobes in the bay-fronted main bedroom, a functional kitchen, and a full bathroom with overhead shower — keep running costs and maintenance straightforward.
Outside, a private rear yard is fully decked and accessed via a back lane, providing a low-maintenance outdoor space. On-street parking to the front adds convenience for residents and visitors. The location is well connected: Chichester Metro station, Marine Park and South Tyneside College are all close by, and the area benefits from excellent mobile signal and fast broadband.
This flat has clear investment and starter-home appeal, but buyers should note a few limitations. The second bedroom is best suited to a single bed or home office rather than a double, and there is a single bathroom. The wider area is classed as deprived with average local crime rates, which may affect longer-term capital growth or lettability in some market segments. The property is freehold and of traditional layout, presenting straightforward management for an owner-occupier or landlord.
Nearby schools include several rated Good and one Outstanding, which will suit families with younger children. Overall this is a practical, well-located flat with low external maintenance and good transport links — a tidy, realistic option for a first purchase or to add to an investment portfolio.
2 bedroom flat for sale in Imeary Street, South Shields, NE33 — £80,000 • 2 bed • 1 bath • 753 ft²
2 bedroom ground floor flat for sale in St. Vincent Street, South Shields, NE33 — £124,995 • 2 bed • 1 bath • 709 ft²
2 bedroom ground floor flat for sale in Ashley Road, South Shields, NE34 — £99,995 • 2 bed • 1 bath • 776 ft²
2 bedroom flat for sale in Broughton Road, South Shields, NE33 — £85,000 • 2 bed • 1 bath • 636 ft²
2 bedroom flat for sale in Hunter Street, South Shields, NE33 — £85,000 • 2 bed • 1 bath • 710 ft²
2 bedroom ground floor flat for sale in Birchington Avenue, South Shields, Tyne and Wear, NE33 — £94,950 • 2 bed • 1 bath


















































































