Spacious five-bedroom house near Melton Mowbray with stables and low-maintenance garden.
Over 3,000 sq ft of flexible living space
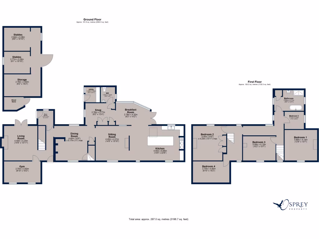
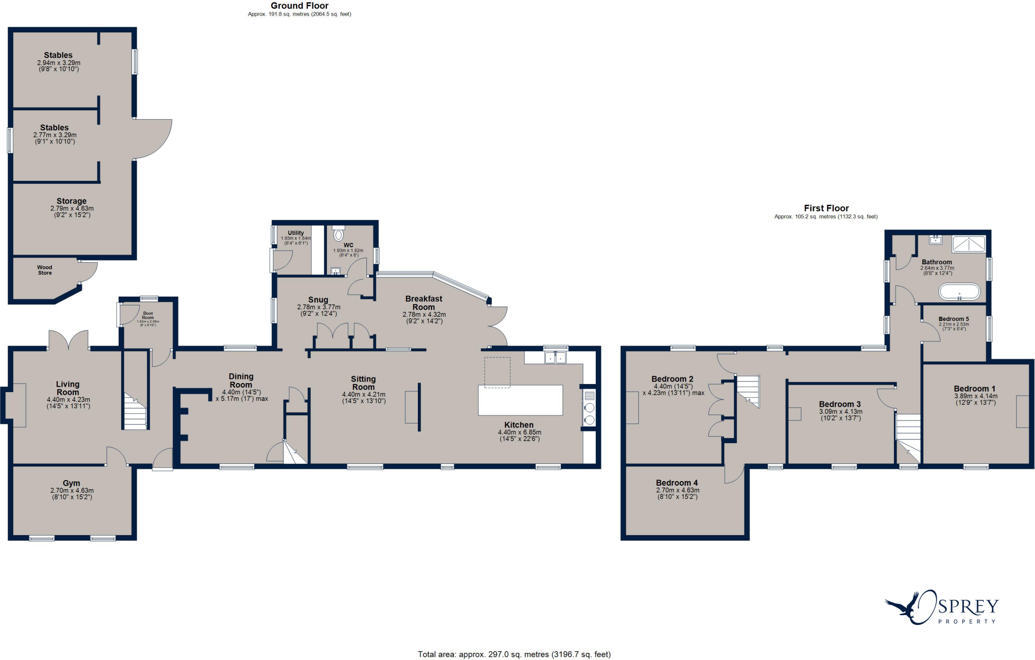
This substantial Victorian farmhouse has been extensively renovated to a high standard while retaining period character such as exposed beams, brick fireplaces and high ceilings. The flexible layout extends to over 3,000 sq ft with five well-proportioned bedrooms and numerous reception rooms ideal for family living, home working and hobbies.
The kitchen/dining room is a modern, fitted hub with island, integrated wine chillers and an oil-fired AGA, and doors lead out to a low-maintenance southerly garden laid mainly to gravel with raised beds and a covered pergola. Practical outbuildings include a detached three-box stable with power and lighting and driveway parking for several vehicles.
Practical considerations are clear and factual: there is one principal family bathroom for five bedrooms, council tax sits in a higher band, and the property’s original stone walls are assumed to lack insulation — further insulating work could improve running costs. Mobile and broadband performance is average for the area.
Set in peaceful Great Dalby with an Ofsted ‘Outstanding’ primary school and easy road links to Melton Mowbray, Chestnut Tree Farm offers spacious family accommodation and flexible outbuildings in a rural, affluent setting. Viewing is recommended to appreciate room sizes and the arrangement of spaces.
4 bedroom detached house for sale in Glebe Farm, Great Dalby, LE14 — £599,950 • 4 bed • 2 bath • 1733 ft²
4 bedroom semi-detached house for sale in Nether End, Great Dalby, Melton Mowbray, LE14 — £525,000 • 4 bed • 2 bath • 2109 ft²
4 bedroom detached house for sale in Main Street, Great Dalby, Melton Mowbray, LE14 — £875,000 • 4 bed • 5 bath • 3069 ft²
4 bedroom detached house for sale in Warren Hills Road, Abbots Oak, Leicestershire, LE67 — £1,499,999 • 4 bed • 4 bath • 3942 ft²
5 bedroom detached house for sale in Carr Lane, Shepshed, LE12 — £895,000 • 5 bed • 3 bath • 3421 ft²
3 bedroom detached house for sale in Glebe Court, Great Dalby, Melton Mowbray, LE14 — £550,000 • 3 bed • 2 bath • 1313 ft²






















































































































































