Characterful single-storey home set in tranquil communal parkland, ideal for accessible living.
No onward chain — immediate vacant possession
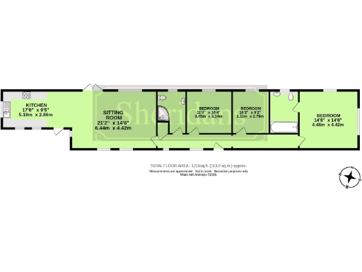
A rare single-storey home set within the grounds of Herringswell Manor, this double-fronted bungalow blends period character with practical, level living. Vaulted ceilings, leaded casements, oak and flagstone floors create a light, airy atmosphere across about 1,200 sq ft, while an L-shaped open-plan kitchen and sitting area provides a natural hub for family life and entertaining.
The principal bedroom includes a generous en suite and there are two further bedrooms served by a shower room, all on a single level — ideal for buyers seeking accessible living or a true lock-up-and-leave lifestyle. The rear garden is well maintained and adjoins the manor’s communal parkland, offering additional green space and walking routes.
Practical points to note: heating is by LPG boiler and radiators, there is an annual service charge of approximately £2,050 for communal upkeep, and the property sits in Council Tax Band F (expensive). A garage is available to rent rather than included, and the plot is modest in size, so external space is limited compared with large country estates.
Overall this home will suit families or downsizers who value character, single-level convenience and the tranquillity of private manor grounds. Cosmetic updating would be rewarded and there is potential for modest value uplift with light refurbishment and landscaping.
3 bedroom detached bungalow for sale in Turnpike Road, Red Lodge, Bury St. Edmunds, Suffolk, IP28 — £415,000 • 3 bed • 1 bath • 1730 ft²
3 bedroom terraced house for sale in The Coach House, Herringswell Manor, IP28 — £425,000 • 3 bed • 3 bath • 1604 ft²
2 bedroom apartment for sale in The Manor, Herringswell, Bury St Edmunds, Suffolk, IP28 — £325,000 • 2 bed • 2 bath • 1232 ft²
3 bedroom bungalow for sale in Badwell Ash, Suffolk, IP31 — £850,000 • 3 bed • 3 bath • 2217 ft²
4 bedroom detached bungalow for sale in Horsecroft Road, Bury St. Edmunds, IP33 — £875,000 • 4 bed • 3 bath • 3128 ft²
2 bedroom detached bungalow for sale in Borley Green, Woolpit, IP30 — £550,000 • 2 bed • 2 bath • 1063 ft²










































































































