Affordable starter purchase close to schools and transport links.
Chain free freehold; approx 642 sq ft
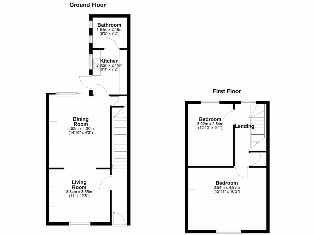
Two double bedrooms; bright living room with high ceilings
Small gravelled front garden; enclosed private rear yard
EPC Grade D; energy efficiency and insulation improvements recommended
Solid brick construction likely no wall insulation
Area has high crime and very deprived local indicators
Low council tax Band A; mains gas boiler and radiators
Requires cosmetic updating to kitchen and bathroom
This mid-terraced Victorian house offers an affordable, chain-free entry into Wallsend. The property has two double bedrooms, a bright living room with high ceilings and original features, and a small front garden plus enclosed rear yard. The home is freehold, around 642 sq ft, with mains gas central heating and double glazing.
The house will suit first-time buyers or hands-on purchasers prepared to refresh and personalise. There is clear potential to improve energy performance (solid brick walls likely without insulation) and update the kitchen and bathroom to increase comfort and value. EPC currently D and council tax is a low Band A, helping running costs.
Buyers should note local context: the wider area ranks as very deprived with higher crime levels, and the neighbourhood profile is described as constrained for renters. Transport links, amenities and several good primary and secondary schools are close by, which supports everyday convenience and resale demand.
Overall this is a practical, low-cost purchase for someone seeking a starter home or small project in a convenient location. The property is offered with no onward chain and no flood risk, but it will reward those willing to carry out moderate cosmetic and energy-efficiency improvements.
2 bedroom terraced house for sale in Beverley Place, Wallsend, NE28 — £130,000 • 2 bed • 1 bath • 628 ft²
3 bedroom terraced house for sale in Richardson Street, Wallsend, NE28 — £180,000 • 3 bed • 2 bath • 856 ft²
2 bedroom semi-detached house for sale in High View North, Wallsend, Tyne and Wear, NE28 — £100,000 • 2 bed • 1 bath • 666 ft²
1 bedroom terraced house for sale in Archer Street, Wallsend, NE28 — £85,000 • 1 bed • 1 bath • 603 ft²
3 bedroom terraced house for sale in Park Road, Wallsend, NE28 — £155,000 • 3 bed • 1 bath • 1009 ft²
2 bedroom semi-detached house for sale in Station Road, Wallsend, NE28 — £149,950 • 2 bed • 1 bath • 758 ft²






















































