Contemporary new-build flat with strong rental appeal and commuter links.
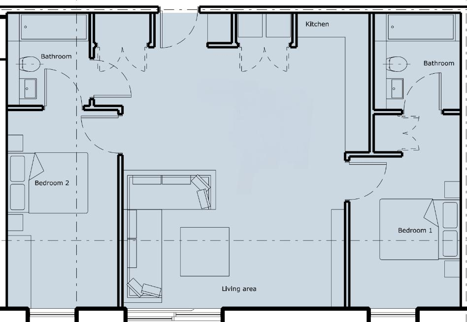
2-bedroom, 2-bath new-build apartment, 785 sq ft
Open-plan living with large windows and riverside balcony
Private gym and residents' cinema on-site
Secure garage parking available (likely additional cost)
Leasehold with c.240 years remaining
Excellent transport: 5-minute walk to Metrolink stations
Strong rental demand; projected growth cited for the development
Wider area classified as relatively deprived; mixed local schools
This recently built two-bedroom, two-bath apartment at Manchester Waters offers contemporary riverside living with strong rental appeal. The open-plan layout, large windows and private balcony maximise light and city views across 785 sq ft, while on-site amenities such as a private gym and residents’ cinema add tenant pull for professional renters.
The unit is leasehold with 240 years remaining and comes newly finished — ready for immediate occupation or letting. Secure garage parking is available (noted separately in development literature), and the location is highly connected: two Metrolink stops are about a five-minute walk away, delivering quick commutes across Greater Manchester.
Buyers should note the wider neighbourhood scores as relatively deprived, which can affect tenant profiles and local services. Local schools are mixed in Ofsted performance. Parking is provided but may incur an additional cost within the scheme. As a new-build in a high-demand rental market, the property offers clear investment potential alongside practical considerations for owner-occupiers.
2 bedroom apartment for sale in Pomona Strand, Manchester, Greater Manchester, M16 — £314,995 • 2 bed • 2 bath • 700 ft²
1 bedroom apartment for sale in Pomona Strand, Manchester, Greater Manchester, M16 — £234,995 • 1 bed • 1 bath • 420 ft²
1 bedroom apartment for sale in Pomona Strand, Manchester, Greater Manchester, M16 — £224,995 • 1 bed • 1 bath • 549 ft²
2 bedroom apartment for sale in Manchester Waters, Block B, Old Trafford, M16 — £195,000 • 2 bed • 2 bath • 710 ft²
1 bedroom apartment for sale in Pomona Strand, Manchester, Greater Manchester, M16 — £234,995 • 1 bed • 1 bath • 420 ft²
2 bedroom apartment for sale in Pomona Strand, Manchester, Greater Manchester, M16 — £294,995 • 2 bed • 2 bath • 700 ft²






























