Large period home near Parsons Green and top schools.
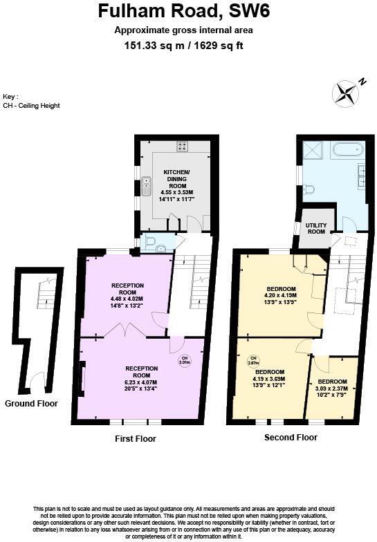
3 double bedrooms, unusually spacious at c.1,629 sq ft
Private gated entrance with direct maisonette access
Large reception with high Victorian ceilings and natural light
Modern fitted kitchen with stainless appliances and dining area
Single main bathroom plus guest WC for three bedrooms
Short walk to Parsons Green Tube and frequent buses
Excellent nearby schools, several rated Outstanding
Leasehold with 93 years remaining; council tax is quite expensive
This large split-level three-bedroom maisonette combines Victorian character with a modern kitchen and bright living spaces, ideal for family life in Fulham. High ceilings, timber floors and large windows give the principal reception an airy, period feel, while the contemporary kitchen and dining area provide a practical, sociable hub.
Arranged over the first and second floors with a private gated entrance, the layout offers clear separation between living and sleeping zones. All three bedrooms are doubles; a spacious family bathroom and a guest WC serve the apartment. The property totals approximately 1,629 sq ft, unusually generous for the area.
Location is a key strength: Parsons Green tube and frequent buses are within a short walk, making central London commutes straightforward. Excellent local schools — including multiple outstanding-rated options — and a wide range of shops, cafés and amenities on Fulham Road suit family routines.
Important practical points: the flat is leasehold with 93 years remaining, and there is one main bathroom for three double bedrooms. Council tax is noted as quite expensive. Buyers should factor lease length and ongoing local tax costs into their offer and financing plans.
3 bedroom flat for sale in Lilyville Road,
Parsons Green, SW6 — £1,150,000 • 3 bed • 1 bath • 1149 ft²
3 bedroom maisonette for sale in Filmer Road,
Fulham, SW6 — £1,250,000 • 3 bed • 2 bath • 1538 ft²
3 bedroom maisonette for sale in Wandsworth Bridge Road, Fulham Broadway, London, SW6 — £800,000 • 3 bed • 1 bath • 1147 ft²
3 bedroom maisonette for sale in Tamworth Street, Fulham, London, SW6 — £875,000 • 3 bed • 2 bath • 1131 ft²
3 bedroom maisonette for sale in New Kings Road, London, SW6 — £1,125,000 • 3 bed • 2 bath • 1206 ft²
3 bedroom end of terrace house for sale in Swift Street, Fulham, London, SW6 — £1,250,000 • 3 bed • 1 bath • 1267 ft²






































