New-build house with energy saving tech, parking and large outside space for family life.
Three bedrooms with main en suite and family bathroom
South-facing garden with French doors from kitchen and lounge
Photovoltaic solar panels for lower energy bills
Electric car charging and two off-street parking spaces
Very large plot within a cul-de-sac setting
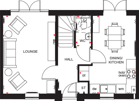
Overall internal size is small (approx. 722 sq ft)
NHBC warranty and new-build insurance included
Local recorded crime levels above average; tenure unspecified
This brand-new three-bedroom semi-detached home on Quarter Jack Park is aimed at families seeking low-maintenance, energy-efficient living. The open-plan kitchen/dining flows to a south-facing garden; a dual-aspect lounge also opens to the outside, giving easy indoor–outdoor living. Photovoltaic solar panels, electric car charging and two allocated parking spaces add everyday convenience and lower running costs. A £21,750 deposit contribution helps buyers get started.
The layout is practical: a main bedroom with en suite, a second double, a single and a family bathroom. The property includes downstairs storage and comes with an NHBC warranty and standard insurance for new-build reassurance. The plot is very large for the development, and the cul-de-sac setting offers a quieter immediate environment.
Be aware of limits: the overall internal size is small (approx. 722 sq ft) so room space is modest compared with larger family homes. Local recorded crime levels are above average, and the tenure is not specified in the supplied details — confirm tenure and service charges before committing. This home suits buyers who prioritise new-build efficiency and modern fittings over generous internal floor area.
3 bedroom semi-detached house for sale in Leigh Road,
Wimborne,
BH21 2BZ, BH21 — £435,000 • 3 bed • 1 bath • 658 ft²
3 bedroom end of terrace house for sale in Leigh Road,
Wimborne,
BH21 2BZ, BH21 — £420,000 • 3 bed • 1 bath • 658 ft²
3 bedroom semi-detached house for sale in Leigh Road,
Wimborne,
BH21 2BZ, BH21 — £410,000 • 3 bed • 1 bath • 697 ft²
4 bedroom semi-detached house for sale in Leigh Road,
Wimborne,
BH21 2BZ, BH21 — £425,000 • 4 bed • 1 bath • 787 ft²
4 bedroom terraced house for sale in Leigh Road,
Wimborne,
BH21 2BZ, BH21 — £420,000 • 4 bed • 1 bath • 762 ft²
4 bedroom semi-detached house for sale in Leigh Road,
Wimborne,
BH21 2BZ, BH21 — £500,000 • 4 bed • 1 bath • 1067 ft²














































