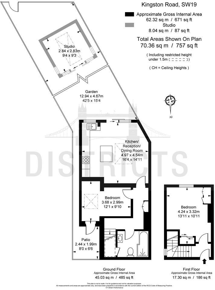
Light-filled two-bedroom with garden studio and excellent transport links.
- Two double bedrooms and one bathroom, arranged over two floors
- South-facing private landscaped garden with office/gym pod and jacuzzi
- Open-plan kitchen/reception with skylight and patio doors
- Chain free sale and newly issued EPC and EICR certificates
- Permit on-street parking available for more than one vehicle
- Leasehold with circa 154 years remaining (peppercorn ground rent)
- Heating via electric storage heaters — potentially higher running costs
- Service charge approx. £470pa; buildings insurance included
Bright, practical and chain free, this two-double-bedroom home sits just moments from Wimbledon’s transport hub. The open-plan kitchen/reception is flooded with natural light from a skylight and patio doors, creating a sociable ground-floor living space that flows directly onto a south-facing landscaped garden.
The garden is a standout: low-maintenance resin paving, private fencing, a modern garden office/gym pod and a jacuzzi offer flexible space for working from home, entertaining or relaxing. Permit parking is available on-street and the property comes with newly issued EPC and EICR certificates, plus buildings insurance included in the service charge.
Practical points to note: the property is leasehold (approximately 154 years remaining) and heated by electric storage heaters, which may affect running costs compared with gas-heated homes. Service charge is approximately £470 per year; ground rent is a peppercorn. Accommodation is arranged over two levels with one bathroom, making the layout best suited to couples, small families or first-time buyers.
Location is a strong asset — excellent schools, multiple green spaces and fast transport links (national rail, District and Northern lines, plus Tramlink) are all within easy reach. Overall this is a low-maintenance, well-presented home in a very affluent part of SW19, offered chain free for a swift purchase.
2 bedroom flat for sale in Woodside, Wimbledon, SW19 — £600,000 • 2 bed • 1 bath • 783 ft²
2 bedroom flat for sale in Effra Road, Wimbledon, SW19 — £550,000 • 2 bed • 1 bath • 818 ft²
2 bedroom end of terrace house for sale in Caxton Road, SW19 — £825,000 • 2 bed • 2 bath • 915 ft²
2 bedroom apartment for sale in Kenilworth Avenue, London, SW19 — £625,000 • 2 bed • 1 bath • 667 ft²
1 bedroom flat for sale in Ridley Road, London, SW19 — £485,000 • 1 bed • 1 bath • 486 ft²
2 bedroom flat for sale in Ridley Road, Wimbledon, SW19 — £425,000 • 2 bed • 1 bath • 493 ft²


























































