**Standout Features:**
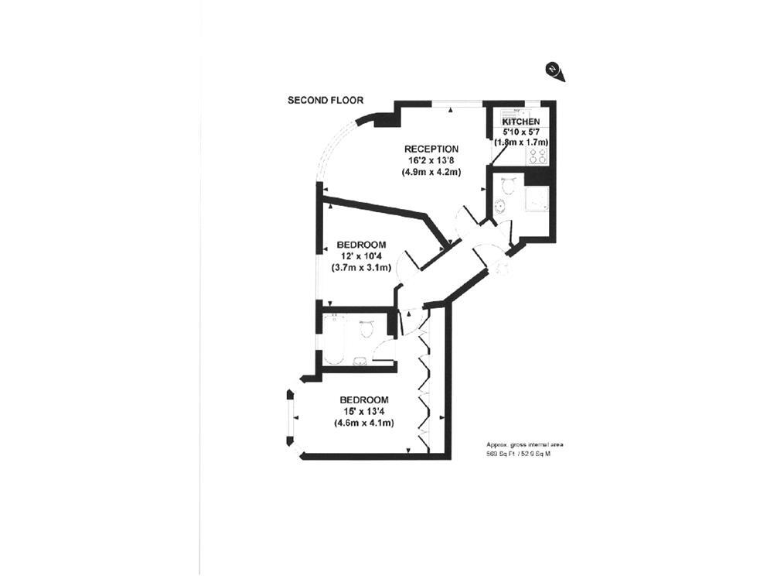
- Two-bedroom, two-bathroom apartment (569 sq ft)
- Bright south-facing reception room with large windows
- Located on the second floor of a portered building with lift access
- Leasehold with 178 years remaining
- Close proximity to Chelsea, Kings Road, Sloane Square, and Knightsbridge
**Notable Concerns:**
- Service charge of £8,000 annually (above average)
- Council tax classified as expensive
Discover comfortable urban living in this modern two-bedroom apartment situated in the highly sought-after Chelsea Cloisters, a well-maintained 1930s building. With its generous south-facing reception area that floods the space with natural light, this home is designed for both relaxation and entertaining. The open layout, hardwood flooring, and contemporary city views further enhance the appeal of this chic city retreat.
Families will appreciate the excellent educational options nearby, with multiple outstanding primary schools ranked in the top 10%. The vibrant neighborhood is packed with an array of local amenities, including shops, cafes, and parks, catering to diverse lifestyles. However, prospective buyers should note the relatively high service charge and council tax.
This flat offers the perfect combination of location and space for first-time buyers or investors seeking rental potential in a cosmopolitan area. With competitive lease terms and strong community amenities, it won't last long on the market. Don’t miss your chance to secure this prime property in one of London’s most desirable locations!
2 bedroom flat for sale in Chelsea Cloisters,
Sloane Avenue, SW3 — £795,000 • 2 bed • 2 bath • 569 ft²
2 bedroom apartment for sale in Chelsea Cloisters, Sloane Avenue, Chelsea, London, SW3 — £850,000 • 2 bed • 2 bath • 622 ft²
2 bedroom flat for sale in Sloane Avenue, SW3 — £795,000 • 2 bed • 2 bath • 569 ft²
1 bedroom flat for sale in Chelsea Cloisters, Sloane Avenue, Chelsea, London, SW3 — £525,000 • 1 bed • 1 bath • 407 ft²
2 bedroom flat for sale in Chelsea Cloisters, Sloane Avenue, London, SW3 — £695,000 • 2 bed • 2 bath • 581 ft²
1 bedroom apartment for sale in Chelsea Cloisters, Sloane Avenue, Chelsea, London, SW3 — £525,000 • 1 bed • 1 bath • 407 ft²






















































































