**Highlights:**
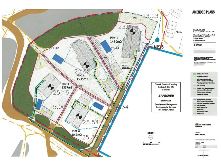
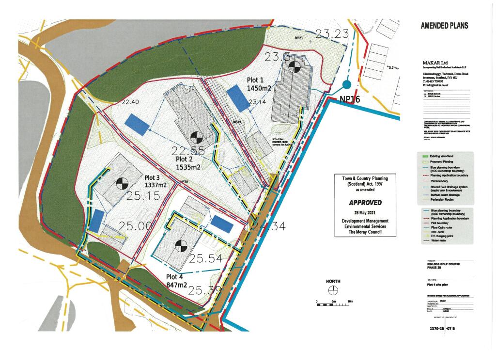
- Fully serviced plot measuring 847m²
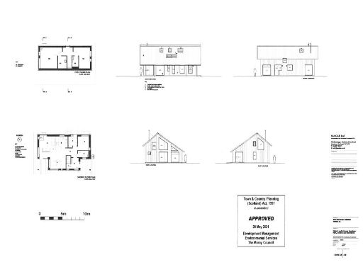
- Full planning permission for a spacious three-bedroom detached home (Planning application 20/00784/APP)
- Semi-rural location near Kinloss, close to Roseisle Beach and Findhorn village
- Ideal for outdoor enthusiasts with nearby recreational activities
- Expansive countryside views and peaceful surroundings
Nestled in the tranquil community of Fairway Heights near Kinloss Golf Club, this exceptional 847m² plot offers a unique opportunity for those seeking a peaceful retreat. With full planning permission in place for a spacious three-bedroom detached family home, you can envision creating your perfect residence among picturesque rolling farmland and lush greenery.
This idyllic location is just a stone's throw from stunning Roseisle Beach and the charming coastal village of Findhorn, perfect for sailing and outdoor activities, appealing to families and outdoor enthusiasts alike. The plot is fully serviced, equipped with water and electricity ready to bring your dream home to life.
With the potential for future renovations or extensions, this spacious plot represents a fantastic investment in a desirable semi-rural setting. Don't miss your chance to own a slice of this serene landscape—opportunities like this are rare and won’t last long!
Plot for sale in Woodland Plot No, Kinloss, Forres, Moray, IV36 — £80,000 • 1 bed • 1 bath
Plot for sale in East Grange Cottages, Kinloss, Forres, IV36 — £60,000 • 1 bed • 1 bath
Land for sale in Seapark Lane, Kinloss, Forres. IV36 3SZ, IV36 — £70,000 • 1 bed • 1 bath • 1442 ft²
Plot for sale in Plot At Lachlanwells, Forres, Moray, IV36 — £110,000 • 1 bed • 1 bath
Land for sale in Plot 2 Wester Buthill, Roseisle, IV30 — £85,000 • 1 bed • 1 bath
Land for sale in Plot 4 Wester Buthill, Roseisle, IV30 — £95,000 • 1 bed • 1 bath • 9504 ft²






























