**Standout Features:**
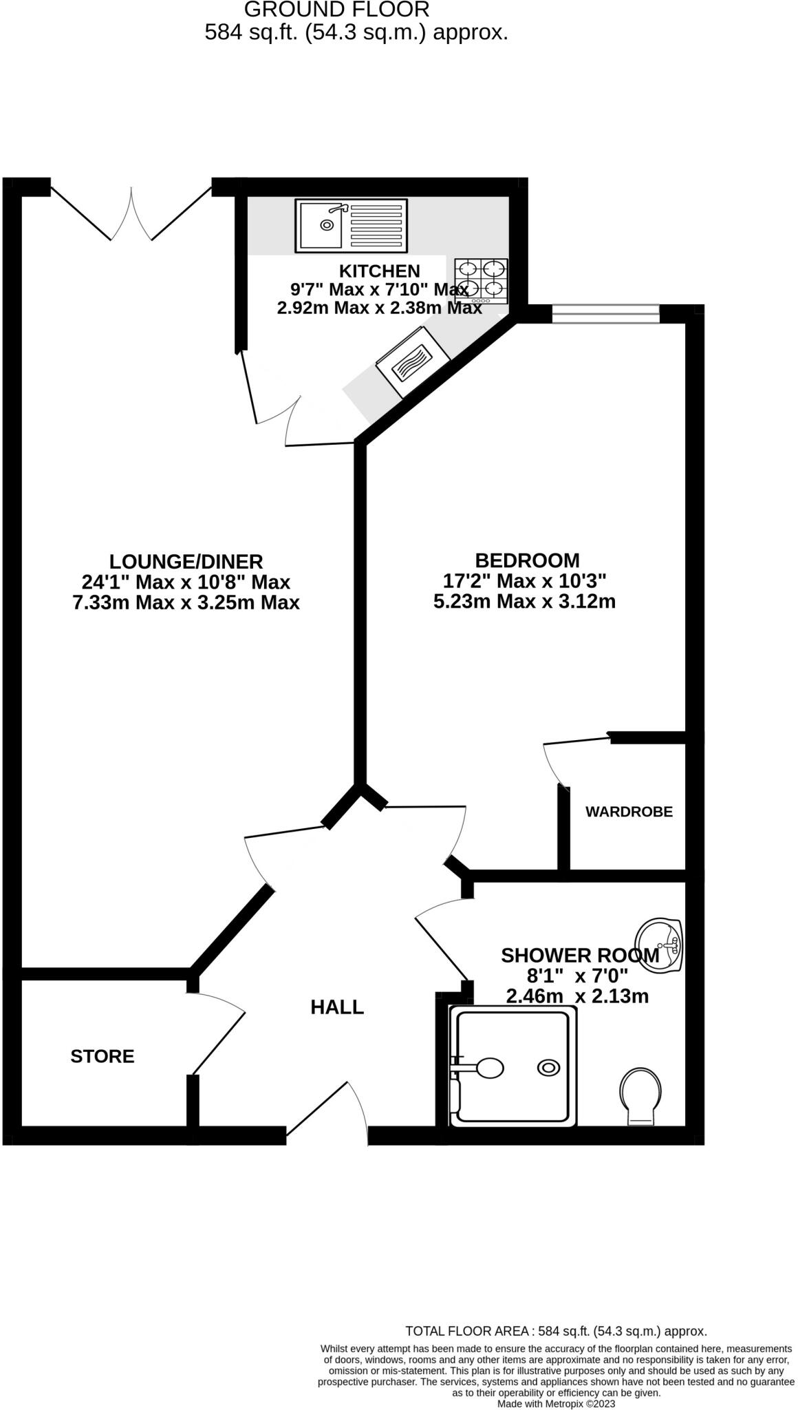
- Ground floor, chain-free apartment ideal for over-70s
- One double bedroom and spacious 24ft lounge/diner with double patio doors
- Modern fitted kitchen with integrated appliances, including new fridge freezer
- Fully tiled wet room and additional storage space
- Access to a rooftop garden with views over marina
- Allocated off-street parking available
- Close proximity to town center amenities, including shops and a multiplex cinema
- Service charge includes maintenance, heating, and one hour of domestic assistance per week
**Summary:**
Welcome to this superbly appointed ground-floor apartment designed for luxury retirement living for those aged 70 and above. Featuring a spacious 24ft lounge/diner that opens to a delightful patio, and a modern kitchen equipped with high-quality appliances, this property offers the perfect blend of comfort and convenience. The double bedroom provides ample space, while the fully tiled wet room enhances functionality.
Set within a well-maintained complex, residents can enjoy a stunning rooftop garden with panoramic views and various communal spaces, including an on-site restaurant and guest suite. With a desirable location in Northwich, you’ll be just a short walk from essential amenities like Waitrose and the scenic marina.
Please note, the service charge is substantial at £9750 annually, but it covers essential services and maintenance, plus valuable support such as 24-hour emergency call access. With a long lease of 107 years left, this delightful apartment presents an incredible opportunity for those seeking a secure and community-oriented lifestyle. Act now to make this inviting retirement haven your new home!
2 bedroom flat for sale in Marbury Court, Northwich, CW9 — £250,000 • 2 bed • 1 bath • 727 ft²
1 bedroom ground floor flat for sale in Chester Way Marbury Court, Northwich, CW9 — £80,000 • 1 bed • 1 bath • 584 ft²
1 bedroom apartment for sale in Marbury Court, Chester Way, Northwich, CW9 — £160,000 • 1 bed • 1 bath • 603 ft²
1 bedroom apartment for sale in Marbury Court, Chester Way, Northwich, CW9 — £100,000 • 1 bed • 1 bath • 605 ft²
1 bedroom penthouse for sale in Chester Way, Northwich, Cheshire, CW9 — £170,000 • 1 bed • 1 bath • 546 ft²
1 bedroom apartment for sale in Marbury Court, Chester Way, Northwich, CW9 — £95,000 • 1 bed • 1 bath • 599 ft²






















































































