Bright, move-ready home in a well-connected Hull neighbourhood for first-time buyers.
Popular HU5 location near schools and amenities
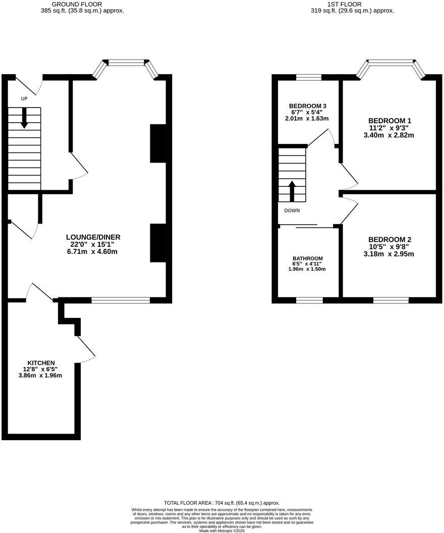
Three bedrooms across a compact 704 sq ft split-level layout
Open-plan lounge/diner with laminate flooring, modern finish
Small, low-maintenance rear garden and front driveway
Freehold tenure; council tax band B, relatively cheap
Very deprived area with above-average local crime rates
Small plot and modest room sizes; not suitable for large families
Gas central heating present but system untested
A well-presented three-bedroom mid-terrace on Wold Road combines Edwardian street character with a modernised open-plan living space. The ground-floor lounge/diner is bright and sociable, while the rear garden offers a low-maintenance outdoor area for children or simple relaxation.
Internally the layout is compact (704 sq ft) and practical, with three bedrooms across the first floor and a single family bathroom. The property benefits from double glazing and gas central heating (not tested), making it ready for immediate occupation with minimal cosmetic updating required.
Buyers should note this home sits in a very deprived, higher-crime neighbourhood and occupies a small plot; the house suits first-time buyers or downsizers who prioritise location, low running costs and move-in ready accommodation over space. Freehold tenure and fast broadband are practical benefits for modern living.
3 bedroom end of terrace house for sale in Wymersley Road, Hull, HU5 — £140,000 • 3 bed • 1 bath • 712 ft²
3 bedroom terraced house for sale in Strensall Road, Hull, HU5 — £175,000 • 3 bed • 1 bath • 944 ft²
2 bedroom terraced house for sale in Wold Road, Hull, HU5 — £130,000 • 2 bed • 2 bath • 657 ft²
3 bedroom terraced house for sale in Worthing Street, Hull, HU5 — £110,000 • 3 bed • 1 bath • 926 ft²
3 bedroom terraced house for sale in Dalwood Close, Bransholme, Hull, HU7 — £110,000 • 3 bed • 1 bath • 657 ft²
3 bedroom terraced house for sale in Gower Road, Hull, HU4 — £130,000 • 3 bed • 1 bath • 872 ft²






































































