Comfortable, low‑maintenance living with good parking and garden near the A1.
- Three bedrooms; main bedroom with ensuite shower
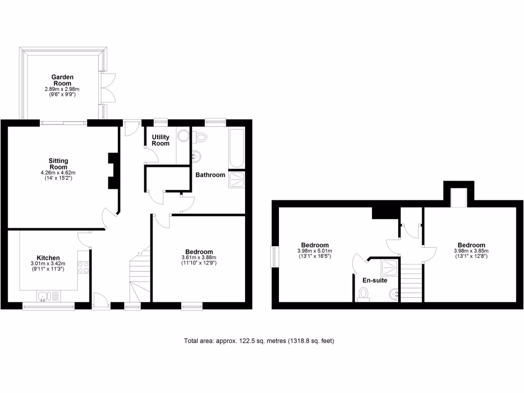
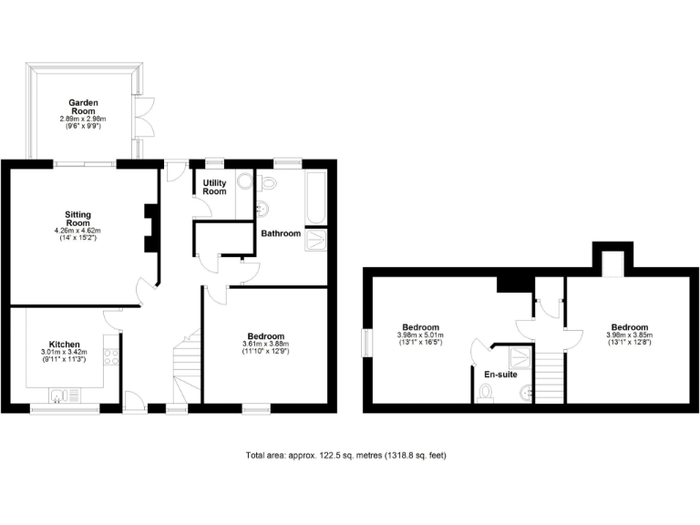
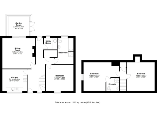
A deceptively spacious three-bedroom bungalow in peaceful South Charlton, set within a small, attractive development and framed by a mature wraparound garden. The ground floor offers a welcoming hall, sitting room with open fire and adjoining garden room, breakfasting kitchen and utility room. There is a ground-floor bathroom and a bright bedroom; two further bedrooms sit on the first floor, the larger with an ensuite shower room.
Practical features include private off-street parking to the rear, oil-fired boiler with radiators, double glazing and provision for white goods. The plot is a decent size for the village and the property benefits from excellent mobile signal and fast fibre broadband — useful for remote working or staying connected in this rural location. The A1 is one mile away, giving straightforward access to Alnwick, the coast and rail links at Alnmouth.
Important considerations: heating runs on oil and the EPC rating is D. Drainage is private, and the home is semi-detached with first-floor bedrooms accessed by stairs, which may not suit all downsizers. Council Tax sits at Band E. Overall this is a comfortable, well-laid-out home for someone seeking manageable village living with scope to personalise internal finishes.
4 bedroom detached bungalow for sale in Dunstanburgh Cottage, South Charlton, NE66 — £745,000 • 4 bed • 3 bath • 1491 ft²
5 bedroom detached house for sale in Alnmouth Road,
Alnwick,
NE662QH, NE66 — £514,995 • 5 bed • 1 bath • 754 ft²
5 bedroom bungalow for sale in Southfield, Rennington, Northumberland, NE66 — £825,000 • 5 bed • 2 bath • 2456 ft²
3 bedroom bungalow for sale in Mount View, Alnwick, NE66 — £360,000 • 3 bed • 2 bath • 1472 ft²
3 bedroom detached bungalow for sale in Gibbs Hill View, Branton, NE66 — £425,000 • 3 bed • 2 bath • 1567 ft²
4 bedroom detached house for sale in Warkworth Cottage, South Charlton, NE66 — £620,000 • 4 bed • 3 bath • 1313 ft²


















































