Compact Victorian property with rental potential and refurbishment upside.
Chain free freehold one-bedroom end-terrace
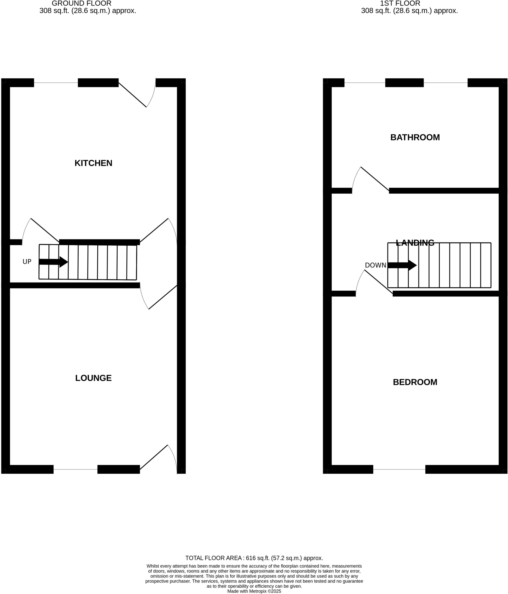
A compact Victorian end-terrace offered chain free and ideal for an investor or buyer seeking a project in Hillsborough. The property is freehold and currently presented as a one-bedroom home with a functional kitchen, cellar access and a small rear garden.
The layout is straightforward: lounge, kitchen, cellar head and first-floor double bedroom with a generous bathroom. Period features such as coving and an old fireplace give character and provide scope to add value through sympathetic updating. The property totals around 616 sq ft and sits within a residential street close to local shops and transport links.
This is best-suited to a landlord or buyer prepared to refresh the interior; there are signs the exterior may need attention (wet brickwork/damp potential) and some cosmetic updating internally. The area shows steady rental demand, good broadband and mobile signal, and low council tax, which all support rental appeal and running costs.
Note the location records higher local crime levels and the garden/plot is very small. For an investor aiming for rental income or a buyer wanting a manageable refurbishment in a central Hillsborough spot, this property offers a clear, low-entry opportunity at the asking price of £120,000.
2 bedroom terraced house for sale in Treswell Crescent, Sheffield, South Yorkshire, S6 — £160,000 • 2 bed • 1 bath • 695 ft²
3 bedroom end of terrace house for sale in Hillsborough Road, Sheffield, S6 — £230,000 • 3 bed • 1 bath • 1119 ft²
3 bedroom terraced house for sale in Hawksley Avenue, Hillsborough, Sheffield, S6 — £239,950 • 3 bed • 1 bath • 1295 ft²
2 bedroom semi-detached house for sale in Rudyard Road, Sheffield, S6 — £140,000 • 2 bed • 1 bath • 1296 ft²
3 bedroom terraced house for sale in Lennox Road, Hillsborough, Sheffield, S6 — £225,000 • 3 bed • 1 bath • 1290 ft²
3 bedroom terraced house for sale in Minto Road, Sheffield, S6 — £165,000 • 3 bed • 1 bath • 1064 ft²














































