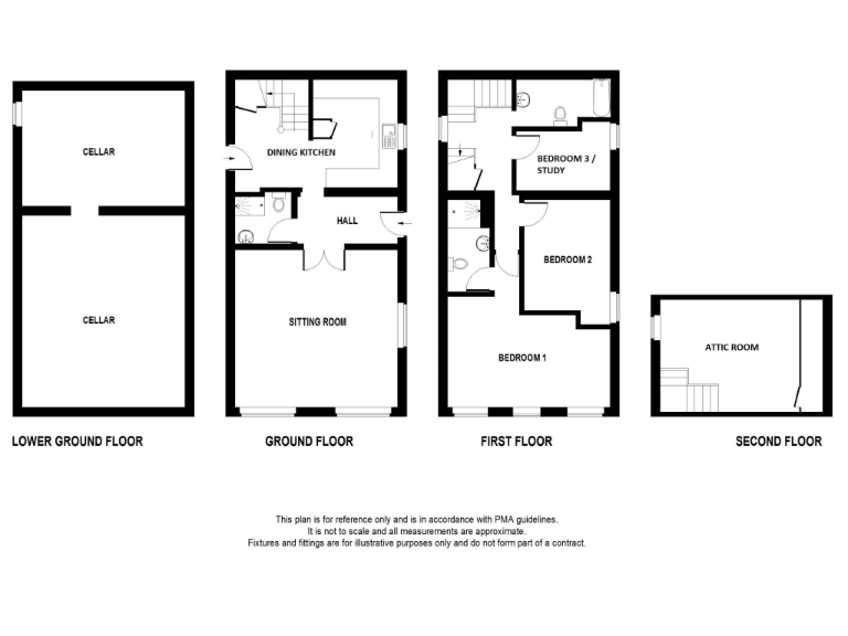
**Standout Features:**
- Grade II Listed property with historic charm
- Four bedrooms, including a principal suite with en suite
- Spacious sitting room and dining kitchen
- Private garden and off-street parking
- External storage cellar
- Sought-after village location in Addingham
This beautifully presented Grade II Listed home in the desirable village of Addingham offers a unique blend of historic charm and modern comfort. With four well-sized bedrooms, including a spacious principal suite with en suite shower facilities, this property is perfect for families or investors seeking rental opportunities in a low-crime area. The ground floor features a welcoming reception, an airy sitting room with stunning sash windows, and a well-appointed dining kitchen with ample storage. Step outside to discover a thoughtfully designed private garden, ideal for relaxation or outdoor entertaining, alongside a convenient driveway for off-street parking.
Potential buyers should note that although this property boasts significant character and is well-maintained, its Grade II Listed status may lead to some renovation considerations. Additionally, the property is situated in a highly sought-after location, just a stone's throw from local amenities and the picturesque countryside surrounding the River Wharfe. Don't miss this opportunity for a refined lifestyle in a historic setting—viewing is essential to fully appreciate what this unique home has to offer!
3 bedroom terraced house for sale in Moor Lane, Addingham, Ilkley, West Yorkshire, LS29 — £515,000 • 3 bed • 1 bath • 1475 ft²
4 bedroom semi-detached house for sale in The Street, Addingham, Ilkley, West Yorkshire, LS29 — £635,000 • 4 bed • 2 bath • 1694 ft²
3 bedroom terraced house for sale in Main Street, Addingham, Ilkley, West Yorkshire, LS29 — £465,000 • 3 bed • 1 bath • 1259 ft²
5 bedroom detached house for sale in High Bank House, Main Street, Addingham, LS29 — £1,150,000 • 5 bed • 3 bath • 3088 ft²
3 bedroom cottage for sale in Lodge Hill, Addingham, LS29 — £395,000 • 3 bed • 2 bath • 1394 ft²
3 bedroom terraced house for sale in Chapel Street, Addingham, Ilkley, West Yorkshire, LS29 — £367,500 • 3 bed • 1 bath • 1076 ft²


































































































































































