Light-filled two-bedroom ground-floor maisonette with private south-facing garden and period charm.
Newly renovated interior with modern kitchen and heating
High ceilings, sash-style windows and original fireplace detail
South-facing private garden — rare for ground-floor flats
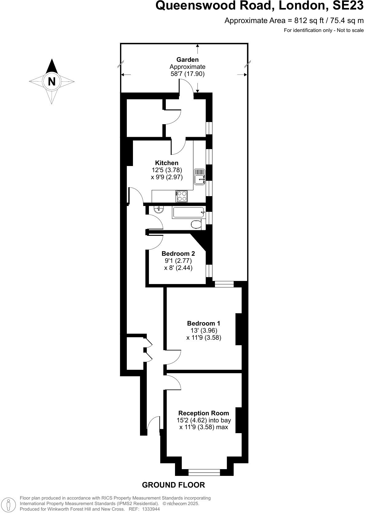
Approx. 812 sq ft — generous two-bedroom layout
Single bathroom only — may be limiting for some households
Leasehold tenure — check remaining term and any charges
Solid brick Victorian build; assumed no cavity insulation
Excellent mobile signal and fast broadband for home working
This recently renovated two-bedroom ground-floor maisonette combines Victorian character with contemporary finishes. High ceilings, sash-style windows and original fireplace details sit alongside a sleek modern kitchen and updated heating, creating a comfortable home ready to move into.
At about 812 sq ft, the layout feels generous for a two-bedroom apartment: a bright living room with tall ceilings and built-in shelving, two well-proportioned bedrooms and a south-facing private garden that brings valuable outdoor space to a ground-floor flat. Local amenities, good schools and reliable transport links make the location practical for everyday life.
Be aware of practical points: the property is leasehold, it has a single bathroom, and the building is a solid-brick Victorian construction with assumed no cavity insulation — this can mean higher heating costs compared with modern-build homes. Flooding risk is low and broadband and mobile signals are strong, which helps for remote working and connectivity.
Overall, this maisonette will suit buyers seeking period charm and ready-to-live-in finishes with outdoor space — especially first-time buyers wanting a home offering character, light and a private garden in a well-connected London neighbourhood.
2 bedroom flat for sale in Devonshire Road, Forest Hill, London, SE23 — £550,000 • 2 bed • 2 bath • 769 ft²
2 bedroom flat for sale in Stondon Park, London, SE23 — £530,000 • 2 bed • 1 bath • 800 ft²
2 bedroom maisonette for sale in Dunoon Gardens, Devonshire Road, London, SE23 — £550,000 • 2 bed • 1 bath • 784 ft²
2 bedroom maisonette for sale in Oakbank Grove, Herne Hill, London, SE24 — £575,000 • 2 bed • 1 bath • 985 ft²
2 bedroom maisonette for sale in Adamsrill Road, London, SE26 — £500,000 • 2 bed • 1 bath • 749 ft²
2 bedroom town house for sale in Ivydale Road, London, SE15 — £480,000 • 2 bed • 1 bath • 691 ft²






























































































