BR1 4RG - 2 bedroom terraced house for sale in Rangefield Road, Broml…

View on Property Piper

2 bedroom terraced house for sale in Rangefield Road, Bromley, BR1

Summary - 161 RANGEFIELD ROAD BROMLEY BR1 4RG

2 bed 1 bath Terraced

Move-in ready two-bed terrace near Grove Park station — ideal for first-time buyers or investors..
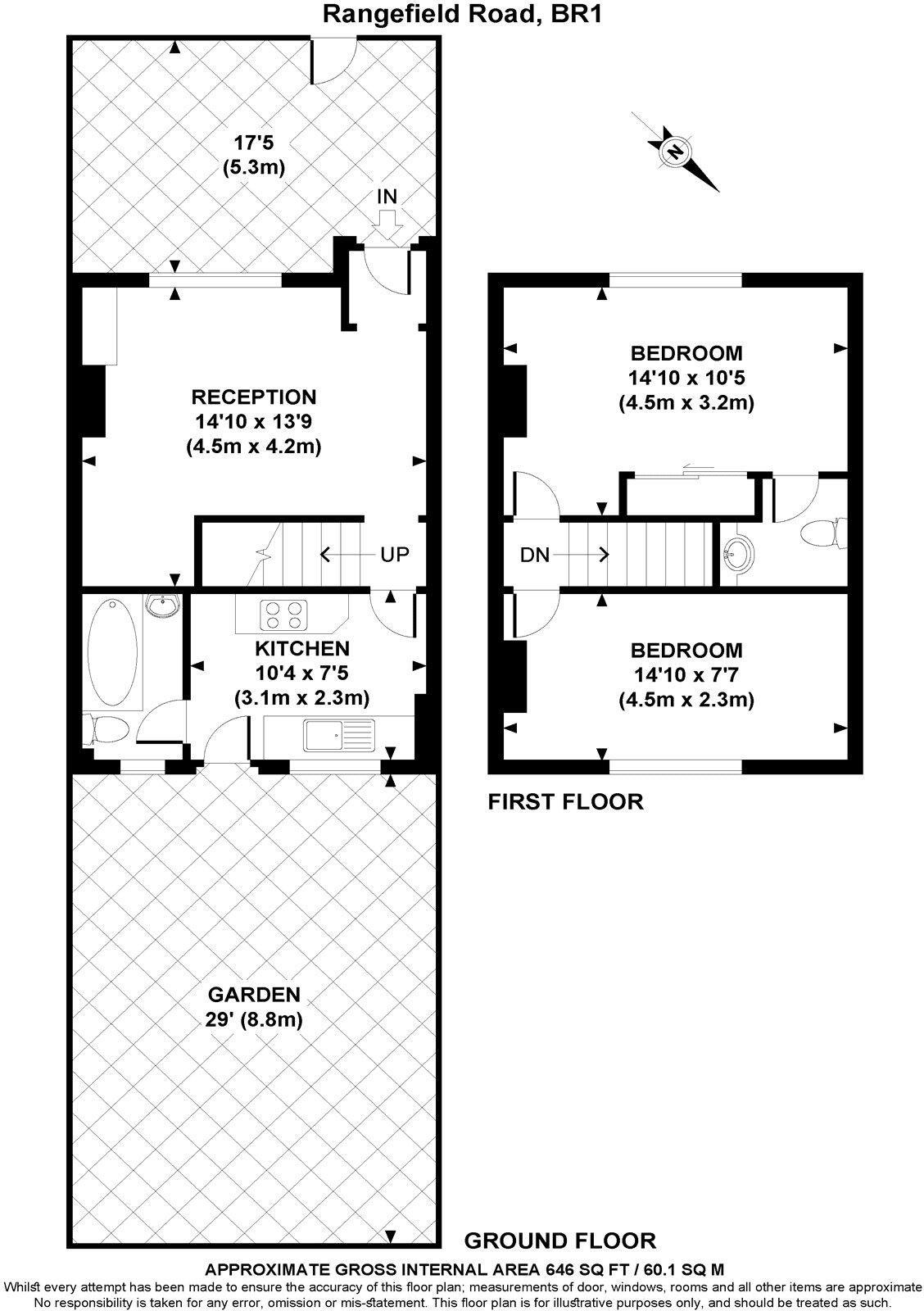
- Two double bedrooms, roughly 646 sq ft overall
- Generous reception room and fully fitted kitchen
- Private rear garden suitable for al fresco dining
- Freehold tenure; popular commuter location by Grove Park station
- EPC rating C; cavity walls assumed uninsulated
- Small plot and modest room sizes for family needs
- Area classified as very deprived; local crime average
- Fast broadband and excellent mobile signal, good for homeworking
This well-presented mid-terrace house on Rangefield Road offers a straightforward, move-in-ready option for first-time buyers or investors seeking reliable rental income. The layout includes a generous reception room, a fully fitted kitchen, and two double bedrooms across approximately 646 sq ft. Outside, a private rear garden provides a usable outdoor space for dining and leisure. The property is freehold and benefits from fast broadband and excellent mobile signal, useful for commuters and home workers.

Location is a strong practical advantage: Grove Park station is within walking distance for regular rail links, and local amenities include schools (Rangefield Primary, Bonus Pastor Catholic College), shops and bus routes to Bromley town centre. The house dates from the 1930–1949 period and retains period proportions typical of mid-20th-century terraced housing.

Buyers should note some material facts: the building has cavity walls with no installed insulation (assumed), the EPC is a C, and the plot and room sizes are modest. The area scores as very deprived overall, and local crime levels are average. There is a single family bathroom and the property will suit those seeking a compact starter home rather than a large family residence.

Overall this is a practical, well-kept two-bedroom terraced home in a commuter-friendly neighbourhood. It represents good value for first-time buyers wanting an established location near transport links, or investors looking for a straightforward rental proposition — provided they accept modest plot size and potential improvement works to insulation and energy performance.

Property Details

Brochure Descriptions

Image Descriptions

Floorplan Description

Rooms

Textual Property Features

Target Audience

AI Tags

Detected Visual Features

EPC Details

Nearby Schools

Nearest Bars And Restaurants

,,,,}

Nearest General Shops

,,}

Nearest Grocery shops

,,}

Nearest Supermarkets

,,}

Nearest Religious buildings

,,}

Nearest Medical buildings

,,,}

Nearest Airports

,,}

Nearest Leisure Facilities

,,,,}

Nearest Tourist attractions

,,}

Nearest Train stations

,,,,}

Nearest Bus stations and stops

,,,,}

Nearest Hotels

,,}

Tags

Local Market Stats

AirBnB Data

Meta

High Res Images

Compatible Images

Low res Images

Thumbnails

Raw Images

High Res Floorplan Images

Compatible Floorplan Images

Low res Floorplan Images

FloorplanImages Thumbnail

Raw Floorplan Images