Three-bedroom house near town with landscaped private garden.
Three bedrooms plus en-suite to master
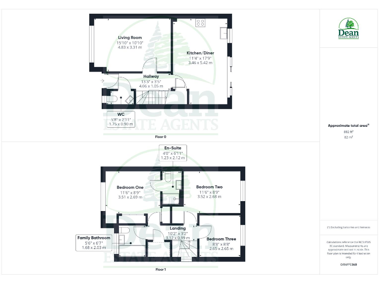
This well-presented three-bedroom semi-detached house offers a practical family layout across two storeys with good natural light and modern fixtures. The master bedroom includes an en-suite and there is a separate family bathroom plus a ground-floor WC, making mornings straightforward for busy households. The fitted kitchen/diner opens via sliding doors to a fully landscaped, low-maintenance rear garden with decking, and the front driveway provides off-street parking for two cars.
Built as an ex-local-authority new-build style property and offered freehold, the home is compact at about 882 sq ft but efficiently arranged. Gas central heating with a mains boiler and an EPC band B indicate reasonable running costs. The location is convenient: a short walk to Lydney town centre amenities, schools rated Good, and public transport links.
Notable practical points: the property is ex-local-authority stock — buyers should check whether any PRC or structural certificates exist if required for mortgage purposes. Crime in the immediate area is reported above average, so purchasers may want to review local safety information. There are no flood risks recorded.
Overall this is a modern, low‑maintenance family house or an attractive buy‑to‑let proposition for investors seeking steady rental demand close to schools and transport. The compact footprint and efficient rooms suit first-time buyers or small families wanting move-in-ready accommodation with modest outdoor space.
3 bedroom semi-detached house for sale in Wintour Drive, Lydney, GL15 — £295,000 • 3 bed • 2 bath • 947 ft²
3 bedroom semi-detached house for sale in Faller Fields, Lydney, GL15 — £260,000 • 3 bed • 3 bath • 883 ft²
3 bedroom semi-detached house for sale in Kingfisher Drive, Lydney, GL15 — £265,000 • 3 bed • 3 bath • 883 ft²
3 bedroom semi-detached house for sale in Lakeside Avenue, Lydney, GL15 — £240,000 • 3 bed • 1 bath • 869 ft²
3 bedroom semi-detached house for sale in Barnett Way, Lydney, GL15 — £250,000 • 3 bed • 2 bath • 819 ft²
3 bedroom semi-detached house for sale in Cooke Way, LYDNEY, GL15 — £280,000 • 3 bed • 2 bath • 776 ft²














































































