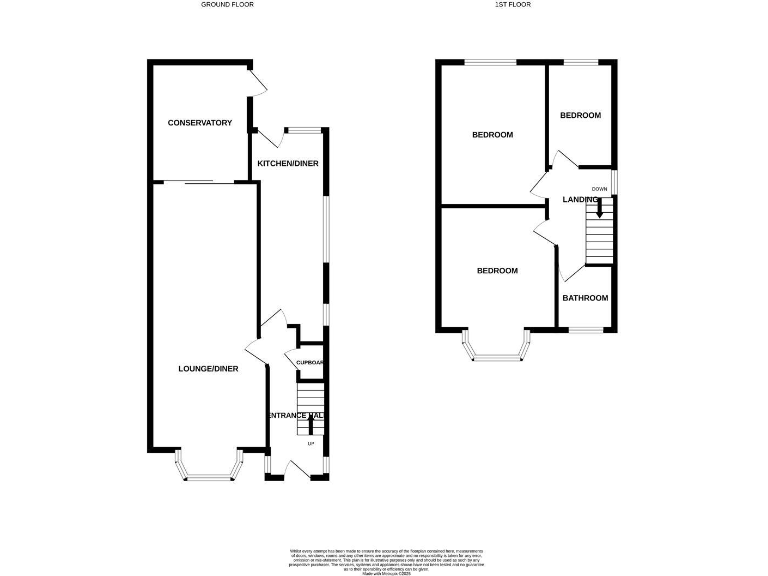
**Standout Features:**
- Traditional bay-fronted semi-detached property
- Three bedrooms, one bathroom
- Spacious dual-aspect living room with conservatory
- Detached garage and off-road parking
- Good-sized front and rear gardens
- **No Forward Chain**
**Concerns:**
- Requires full refurbishment
- Average condition, with no insulation assumed
Discover the potential of this charming three-bedroom semi-detached home, ideally situated in the heart of a developing residential area. This property features a sizable living room that flows into a bright conservatory, creating a welcoming space filled with natural light. The functional kitchen has essential appliances and offers access to the rear garden, while the first floor houses three comfortably sized bedrooms.
Although the property requires modernization, the spacious home presents an excellent opportunity for first-time buyers or investors looking for a refurbishment project. With a detached garage and ample off-road parking, you’ll enjoy the convenience of city living. The neat front and rear gardens provide a pleasant outdoor space to enjoy. This offering comes with the advantage of no forward chain, making it an attractive chance to tailor this residence to your personal tastes. Don’t miss the opportunity to transform this house into your dream home!
3 bedroom semi-detached house for sale in Bramhall Street, Cleethorpes, Lincolnshire, DN35 — £134,950 • 3 bed • 1 bath • 765 ft²
3 bedroom semi-detached house for sale in Mathews Street, Cleethorpes, DN35 — £149,500 • 3 bed • 1 bath • 808 ft²
3 bedroom semi-detached house for sale in Wendover Rise, Cleethorpes, DN35 — £150,000 • 3 bed • 1 bath • 927 ft²
3 bedroom semi-detached house for sale in Woodsley Avenue, Cleethorpes, DN35 — £130,000 • 3 bed • 1 bath • 888 ft²
3 bedroom terraced house for sale in Lady Frances Crescent, Cleethorpes, DN35 — £120,000 • 3 bed • 1 bath • 912 ft²
3 bedroom semi-detached house for sale in Littlefield Lane, Grimsby, DN34 — £165,000 • 3 bed • 1 bath • 1205 ft²


















































































